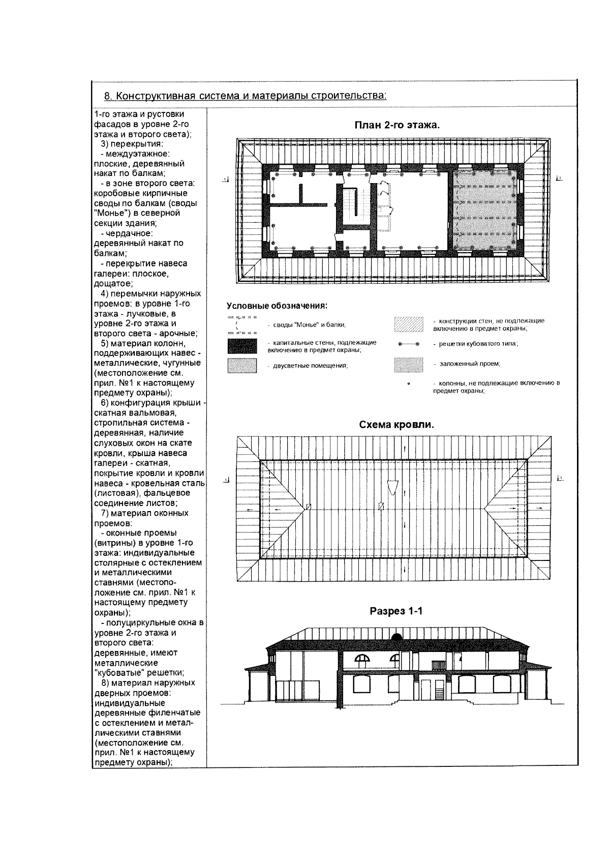
Приказ Инспекции по охране объектов культурного наследия Костромской области от 01.10.2024 № 72-НПА
"Об утверждении предмета охраны объекта культурного наследия федерального значения "Ансамбль Торговых рядов и других зданий центральной части города: Гостиный двор - Корпус Г", сер. XVIII - XIX вв. (Костромская область, г. Кострома)"
(Зарегистрирован 07.10.2024 № 508)
"Об утверждении предмета охраны объекта культурного наследия федерального значения "Ансамбль Торговых рядов и других зданий центральной части города: Гостиный двор - Корпус Г", сер. XVIII - XIX вв. (Костромская область, г. Кострома)"
(Зарегистрирован 07.10.2024 № 508)
Номер опубликования: 4401202410080003
Дата опубликования:
08.10.2024
