Официальное опубликование правовых актов
ОФИЦИАЛЬНОЕ ОПУБЛИКОВАНИЕ
Приказ Инспекции по охране объектов культурного наследия Костромской области от 28.08.2024 № 63-НПА
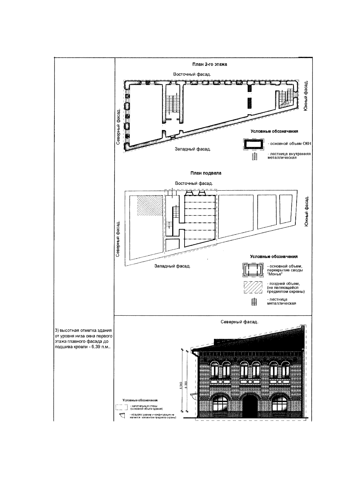
"Об утверждении предмета охраны объекта культурного наследия регионального значения "Дом жилой Прокопенко", 1908 г. (Костромская область, г. Кострома, ул. Советская, 14А)"
(Зарегистрирован 30.08.2024 № 430)
Номер опубликования: 4401202409020005
Дата опубликования: 02.09.2024
Страница №6 из 12:
Увеличить