Официальное опубликование правовых актов
ОФИЦИАЛЬНОЕ ОПУБЛИКОВАНИЕ
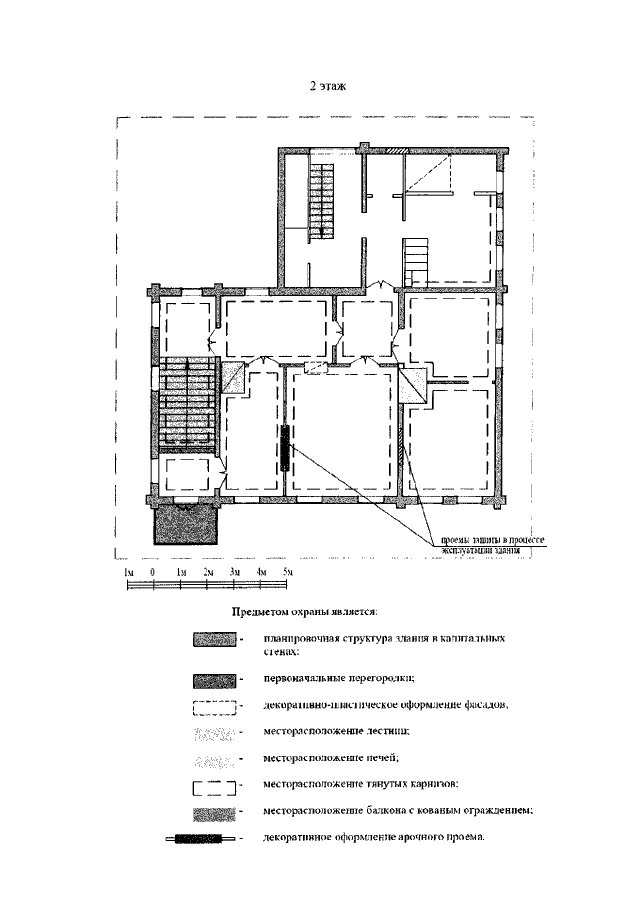
Приказ Инспекции по охране объектов культурного наследия Костромской области от 26.04.2023 № 30-НПА
"Об утверждении предмета охраны объекта культурного наследия регионального значения "Дом жилой", 2-я пол. XIX в. (Костромская область, г. Кострома, ул. Дзержинского, 13)"
(Зарегистрирован 03.05.2023 № 139)
Номер опубликования: 4401202305050001
Дата опубликования: 05.05.2023
Страница №8 из 24:
Увеличить