Официальное опубликование правовых актов
ОФИЦИАЛЬНОЕ ОПУБЛИКОВАНИЕ
Приказ Комитет архитектуры и градостроительства Костромской области от 04.04.2023 № 6
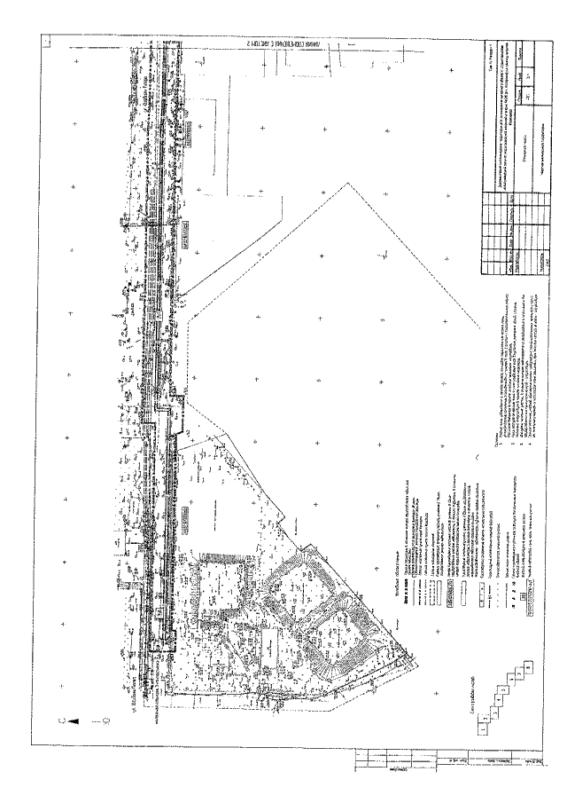
"Об утверждении документации по планировки территории для размещения линейного объекта: "Строительство водопроводной сети от водопроводной насосной станции № 28 (в городе Кострома) до границ поселка Караваево"
(Зарегистрирован 07.04.2023 № 89)
Номер опубликования: 4401202304100004
Дата опубликования: 10.04.2023
Страница №39 из 61:
Увеличить