Официальное опубликование правовых актов
ОФИЦИАЛЬНОЕ ОПУБЛИКОВАНИЕ
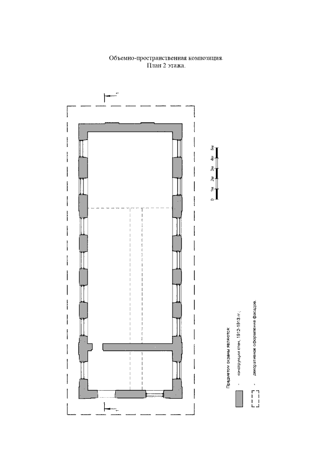
Приказ Инспекции по охране объектов культурного наследия Костромской области от 20.12.2022 № 247
"Об утверждении предмета охраны объекта культурного наследия регионального значения "Ансамбль, XIX – XX вв.: Фильтровальная станция", 1912-1913 гг.(Костромская область, г. Кострома, ул. 1-е Мая, 1 Б)"
Номер опубликования: 4401202212220005
Дата опубликования: 22.12.2022
Страница №7 из 16:
Увеличить