Приказ Инспекции по охране объектов культурного наследия Костромской области от 09.02.2021 № 12
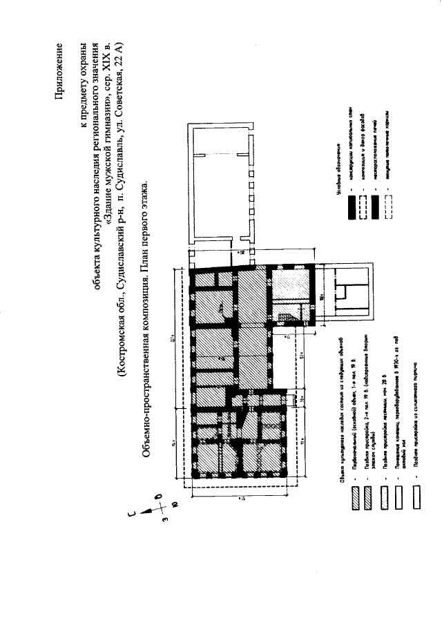
"Об утверждении предмета охраны объекта культурного наследия регионального значения "Здание мужской гимназии", сер. XIX в. (Костромская обл.‚ Судиславский р-н, п. Судиславль, ул. Советская, 22 А)"
"Об утверждении предмета охраны объекта культурного наследия регионального значения "Здание мужской гимназии", сер. XIX в. (Костромская обл.‚ Судиславский р-н, п. Судиславль, ул. Советская, 22 А)"
Номер опубликования: 4401202102100001
Дата опубликования:
10.02.2021
