Официальное опубликование правовых актов
ОФИЦИАЛЬНОЕ ОПУБЛИКОВАНИЕ
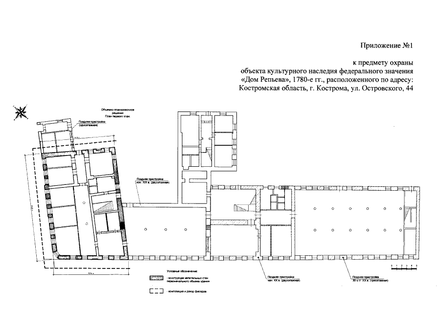
Приказ Инспекции по охране объектов культурного наследия Костромской области от 31.07.2020 № 121
"Об утверждении предмета охраны объекта культурного наследия федерального значения "Дом Репьева", 1780-е гг., расположенного по адресу: Костромская область, г. Кострома, ул. Островского, 44"
Номер опубликования: 4401202008030004
Дата опубликования: 03.08.2020
Страница №4 из 5:
Увеличить