Официальное опубликование правовых актов
ОФИЦИАЛЬНОЕ ОПУБЛИКОВАНИЕ
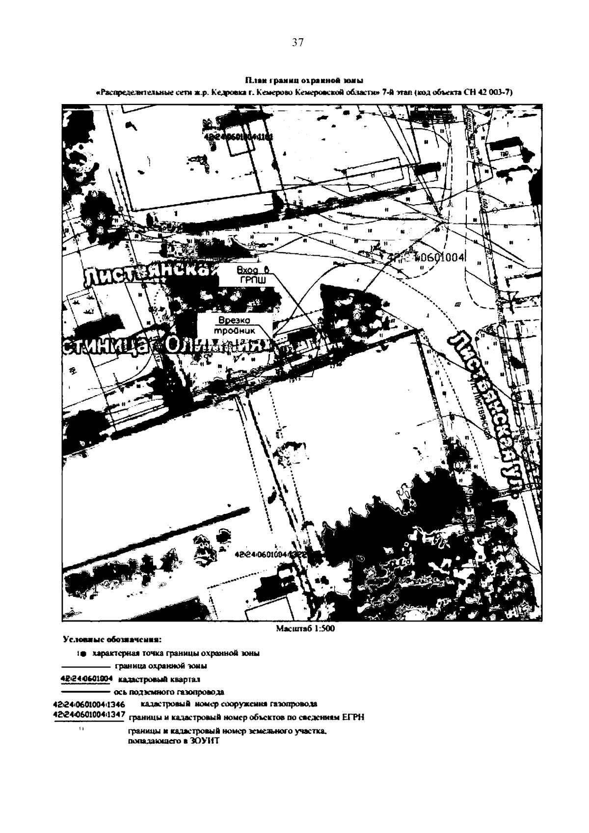
Приказ Министерства промышленности и торговли Кузбасса от 16.12.2025 № 01-05/241
"Об утверждении границ охранных зон существующих газораспределительных сетей и наложении ограничений (обременений) на входящие в них земельные участки"
(Зарегистрирован 24.12.2025 № 00242514214)
Номер опубликования: 4201202512290071
Дата опубликования: 29.12.2025
Страница №37 из 101:
Увеличить