Официальное опубликование правовых актов
ОФИЦИАЛЬНОЕ ОПУБЛИКОВАНИЕ
Постановление Правительства Кемеровской области - Кузбасса от 05.12.2023 № 798
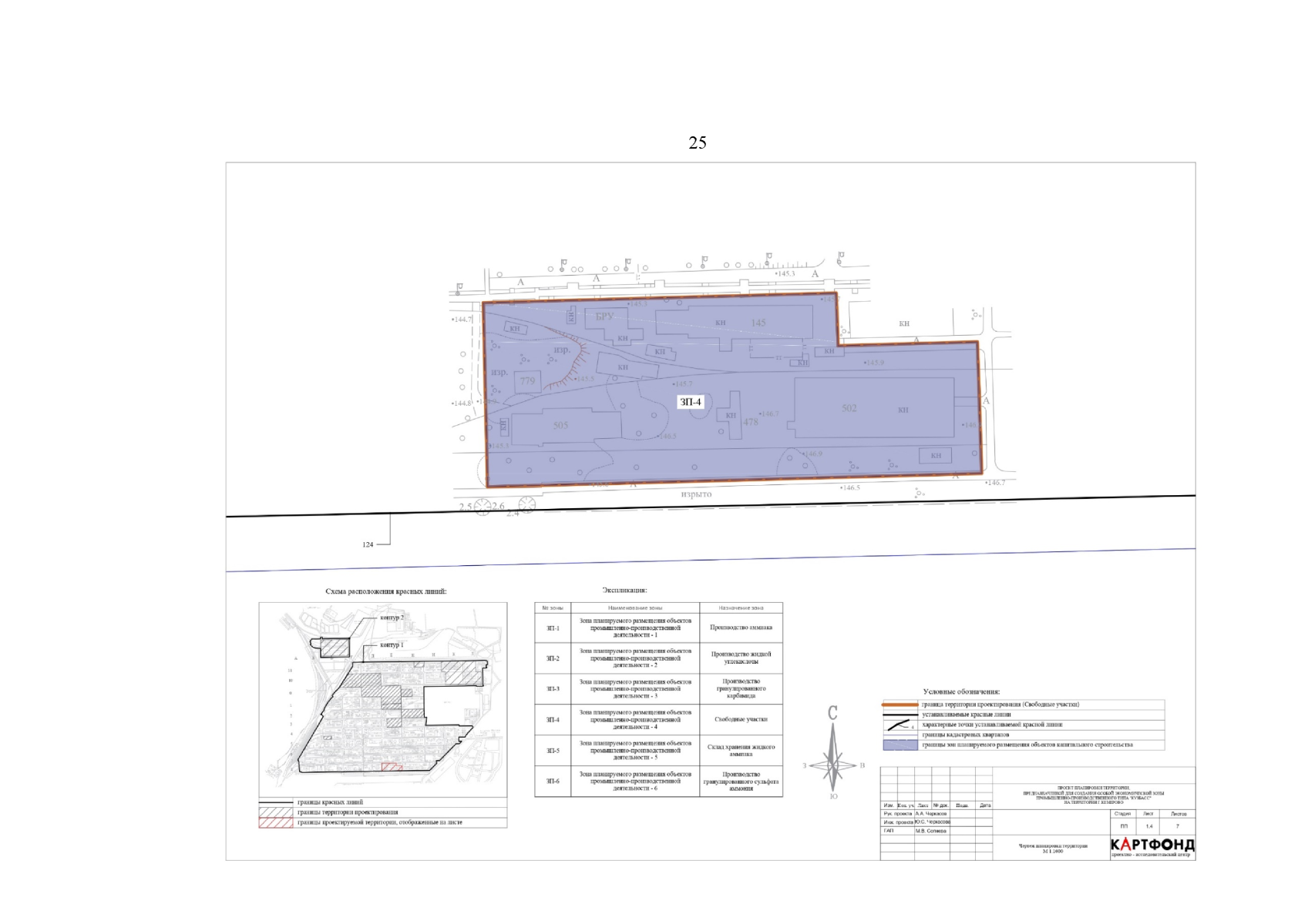
"Об утверждении проекта планировки территории особой экономической зоны промышленно-производственного типа "Кузбасс", созданной на территории города Кемерово и муниципального образования "Топкинский муниципальный округ" Кемеровской области — Кузбасса"
Номер опубликования: 4200202312080002
Дата опубликования: 08.12.2023
Страница №25 из 26:
Увеличить