Официальное опубликование правовых актов
ОФИЦИАЛЬНОЕ ОПУБЛИКОВАНИЕ
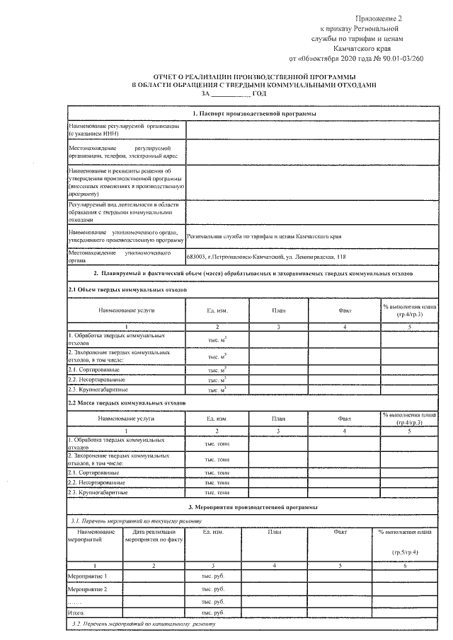
Приказ Региональной службы по тарифам и ценам Камчатского края от 06.10.2020 № 90.01-03/260
"Об определении порядка и формы предоставления отчетности о реализации производственной программы в области обращения с твердыми коммунальными отходами"
Номер опубликования: 4101202010070002
Дата опубликования: 07.10.2020
Страница №5 из 6:
Увеличить