Официальное опубликование правовых актов
ОФИЦИАЛЬНОЕ ОПУБЛИКОВАНИЕ
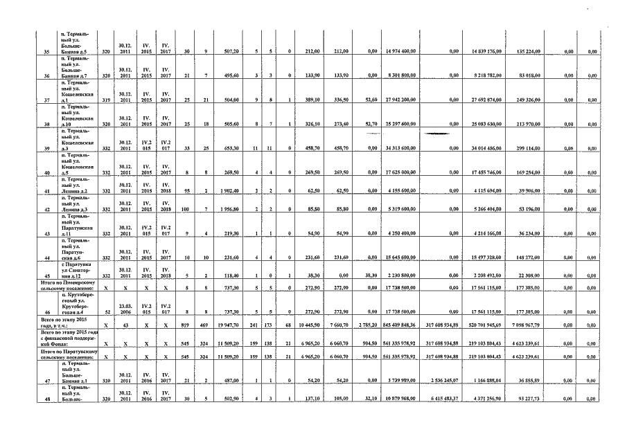
Постановление Правительства Камчатского края от 18.08.2015 № 288-П
"О внесении изменений в государственную программу Камчатского края "Обеспечение доступным и комфортным жильём жителей Камчатского края на 2014-2018 годы", утверждённую постановлением Правительства Камчатского края от 22.11.2013 № 520-П"
Номер опубликования: 4100201508200001
Дата опубликования: 20.08.2015
Страница №16 из 74:
Увеличить