Официальное опубликование правовых актов
ОФИЦИАЛЬНОЕ ОПУБЛИКОВАНИЕ
Приказ Управления по охране объектов культурного наследия Калужской области от 02.08.2023 № 68
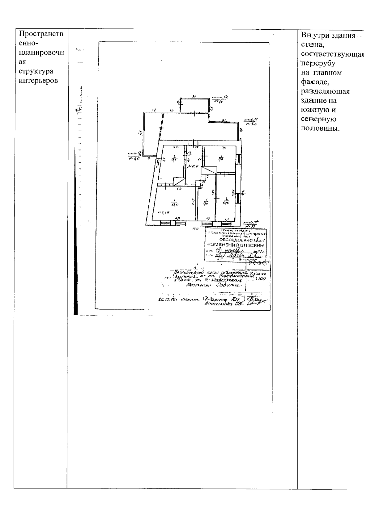
"О включении в единый государственный реестр объектов культурного наследия (памятников истории и культуры) народов Российской Федерации выявленного объекта культурного наследия "Площадь соборная, XVIII – XIX вв.", дом № 16 (г. Козельск, ул. Большая Советская, д. 16)"
(Зарегистрирован 25.08.2023 № 13347)
Номер опубликования: 4001202308310004
Дата опубликования: 31.08.2023
Страница №8 из 13:
Увеличить