Официальное опубликование правовых актов
ОФИЦИАЛЬНОЕ ОПУБЛИКОВАНИЕ
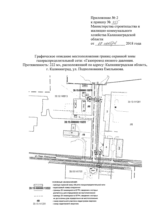
Приказ Министерства строительства и жилищно-коммунального хозяйства Калининградской области от 07.11.2018 № 455
"Об утверждении границ охранных зон газораспределительных сетей и наложении ограничений (обременений) на входящие в них земельные участки"
Номер опубликования: 3901201811130018
Дата опубликования: 13.11.2018
Страница №4 из 4:
Увеличить