Официальное опубликование правовых актов
ОФИЦИАЛЬНОЕ ОПУБЛИКОВАНИЕ
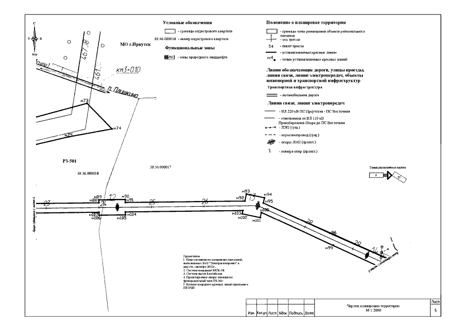
Постановление Правительства Иркутской области от 21.07.2017 № 487-пп
"Об утверждении проекта планировки территории и проекта межевания территории, предназначенной для размещения линейного объекта регионального значения "Строительство двухцепной ВЛ 110 кВ (в габ. 220 кВ) "Восточная – Туристская" (до IIII 110 кВ Разводной)" в Иркутском районе Иркутской области"
Номер опубликования: 3800201707270001
Дата опубликования: 27.07.2017
Страница №40 из 180:
Увеличить