Официальное опубликование правовых актов
ОФИЦИАЛЬНОЕ ОПУБЛИКОВАНИЕ
Постановление Правительства Иркутской области от 03.04.2017 № 220-пп
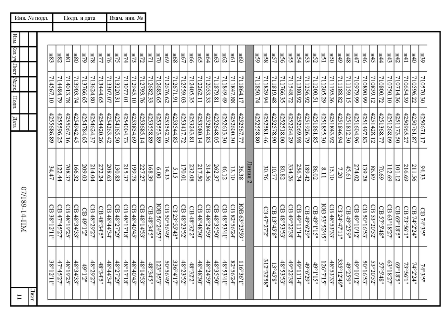
"Об утверждении проекта планировки территории и проекта межевания территории, предназначенной для размещения линейного объекта регионального значения "Строительство автомобильной дороги Жигалово-Казачинское на участке км 87 – км 107 в Жигаловском районе Иркутской области (Реконструкция автомобильной дороги Жигалово-Казачинское на участке км 87 – км 107 в Жигаловском районе Иркутской области)"
Номер опубликования: 3800201704070002
Дата опубликования: 07.04.2017
Страница №50 из 69:
Увеличить