Официальное опубликование правовых актов
ОФИЦИАЛЬНОЕ ОПУБЛИКОВАНИЕ
Постановление Правительства Иркутской области от 21.07.2016 № 445-пп
"Об утверждении проекта планировки территории и проекта межевания территории, предназначенной для размещения линейного объекта регионального значения "Реконструкция мостового перехода через р. Гербилак в Казачинско-Ленском районе (Реконструкция мостового перехода через р. Гербилак на км 201+244 автомобильной дороги Усть-Кут – Уоян в Казачинско-Ленском районе Иркутской области)"
Номер опубликования: 3800201607260006
Дата опубликования: 26.07.2016
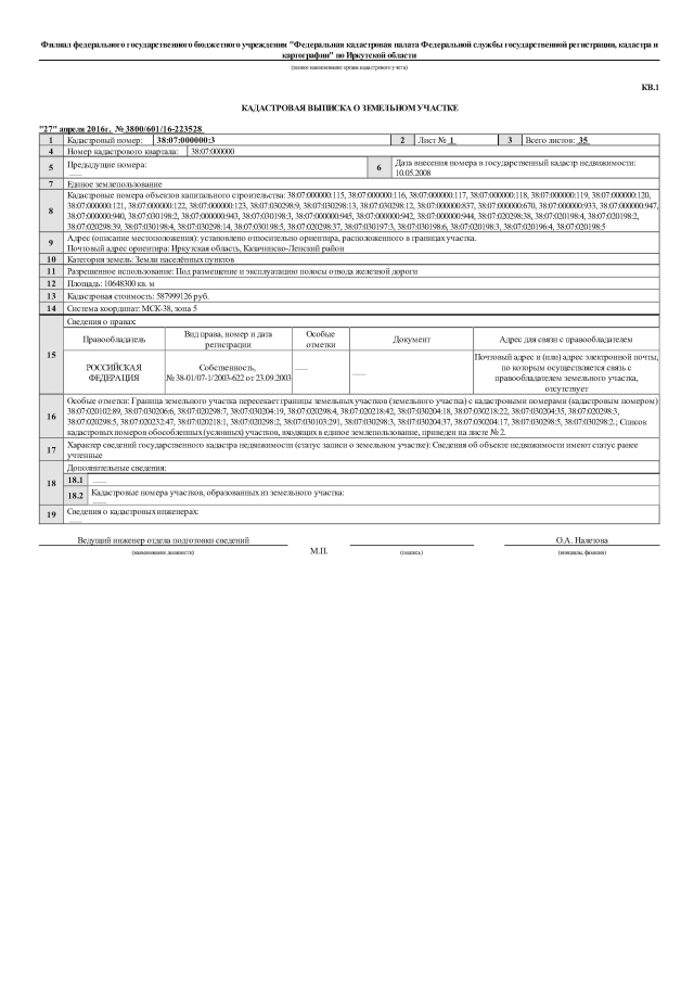
Страница №46 из 66:
Увеличить