Официальное опубликование правовых актов
ОФИЦИАЛЬНОЕ ОПУБЛИКОВАНИЕ
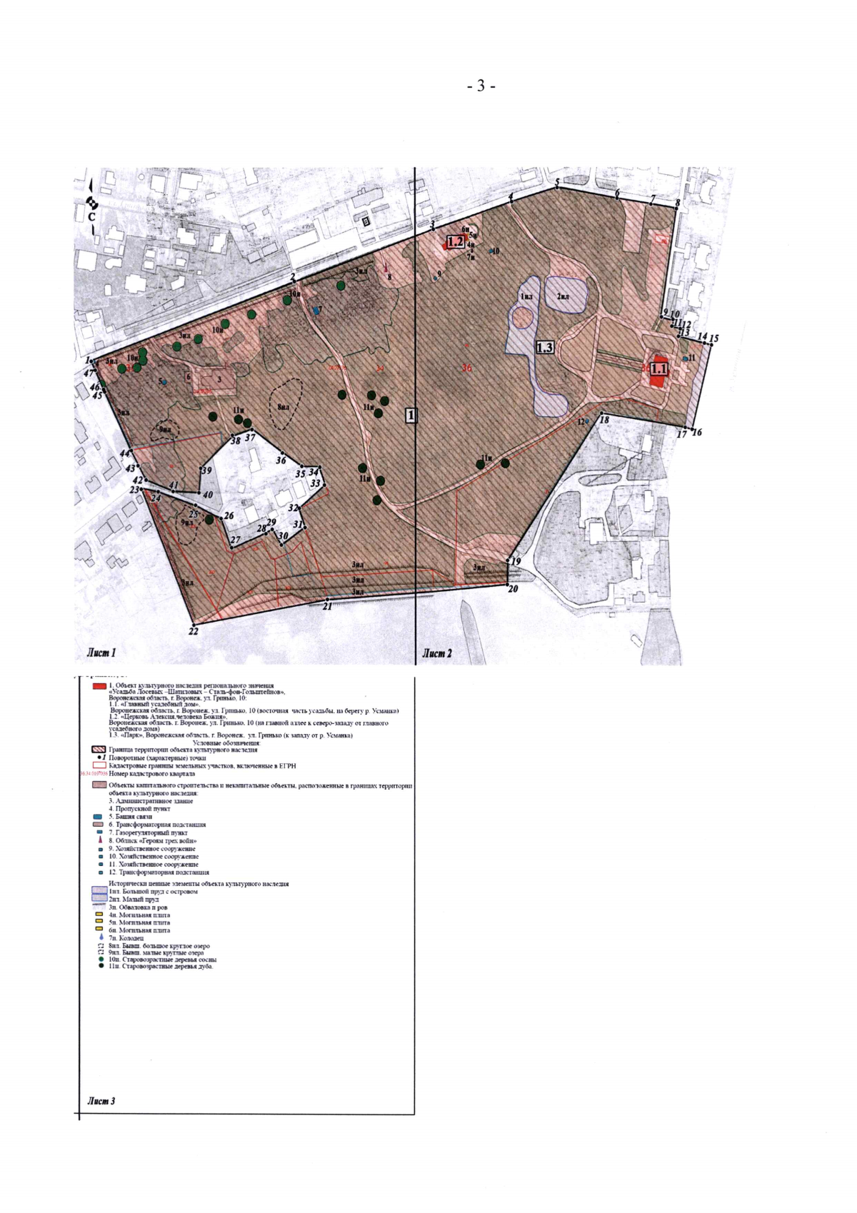
Приказ управления по охране объектов культурного наследия Воронежской области от 20.06.2025 № 71-01-05/128
"О внесении изменений в приказ управления по охране объектов культурного наследия Воронежской области от 11.11.2019 № 71-01-07/281"
(Зарегистрирован 11.07.2025 № 750)
Номер опубликования: 3601202507150002
Дата опубликования: 15.07.2025
Страница №3 из 6:
Увеличить