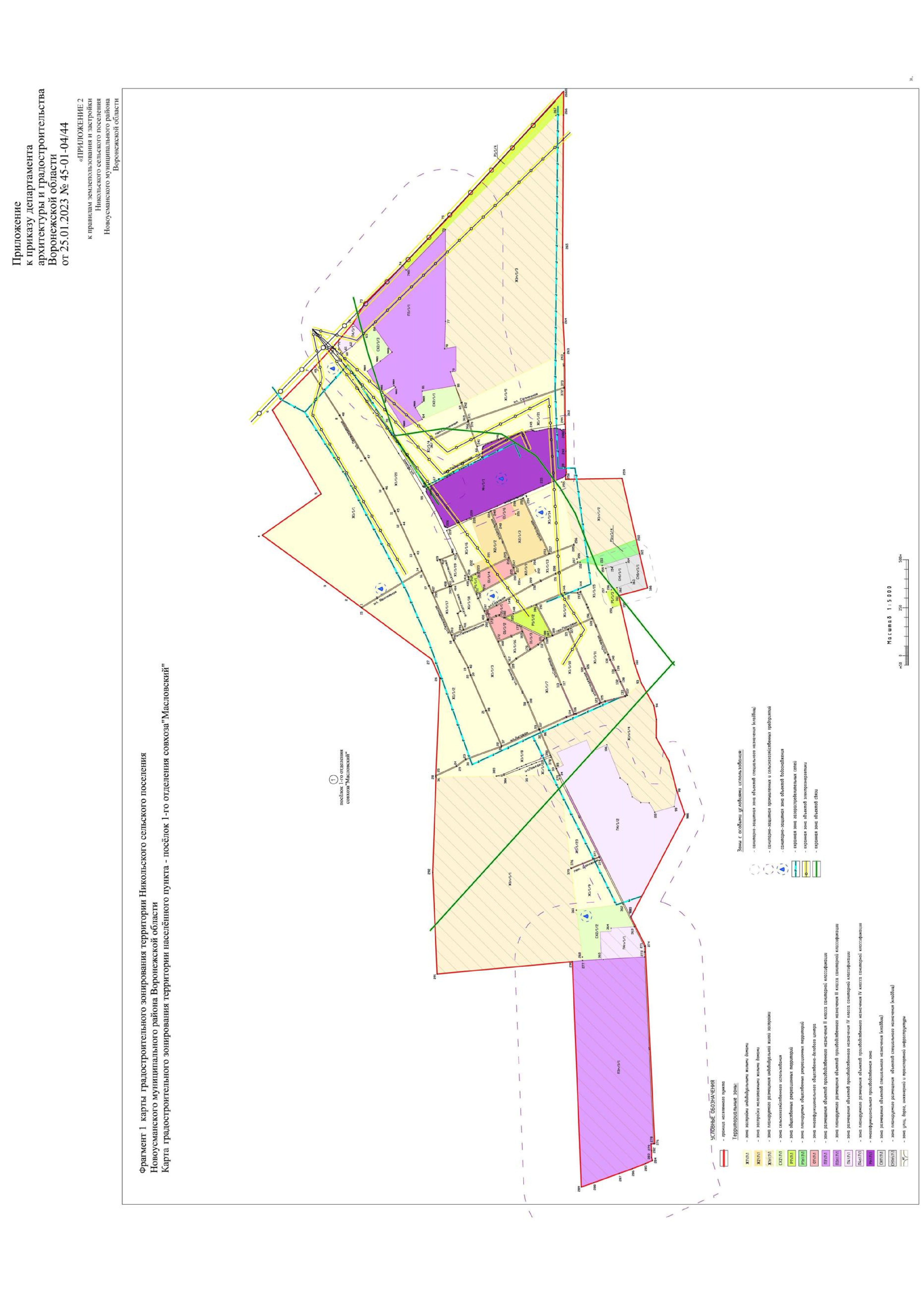
Приказ Департамента архитектуры и градостроительства Воронежской области от 25.01.2023 № 45-01-04/44
"О внесении изменений в правила землепользования и застройки Никольского сельского поселения Новоусманского муниципального района Воронежской области"
(Зарегистрирован 03.02.2023 № 85)
"О внесении изменений в правила землепользования и застройки Никольского сельского поселения Новоусманского муниципального района Воронежской области"
(Зарегистрирован 03.02.2023 № 85)
Номер опубликования: 3601202302090006
Дата опубликования:
09.02.2023
