Официальное опубликование правовых актов
ОФИЦИАЛЬНОЕ ОПУБЛИКОВАНИЕ
Приказ Департамента сельского хозяйства и продовольственных ресурсов Вологодской области от 16.07.2024 № 250
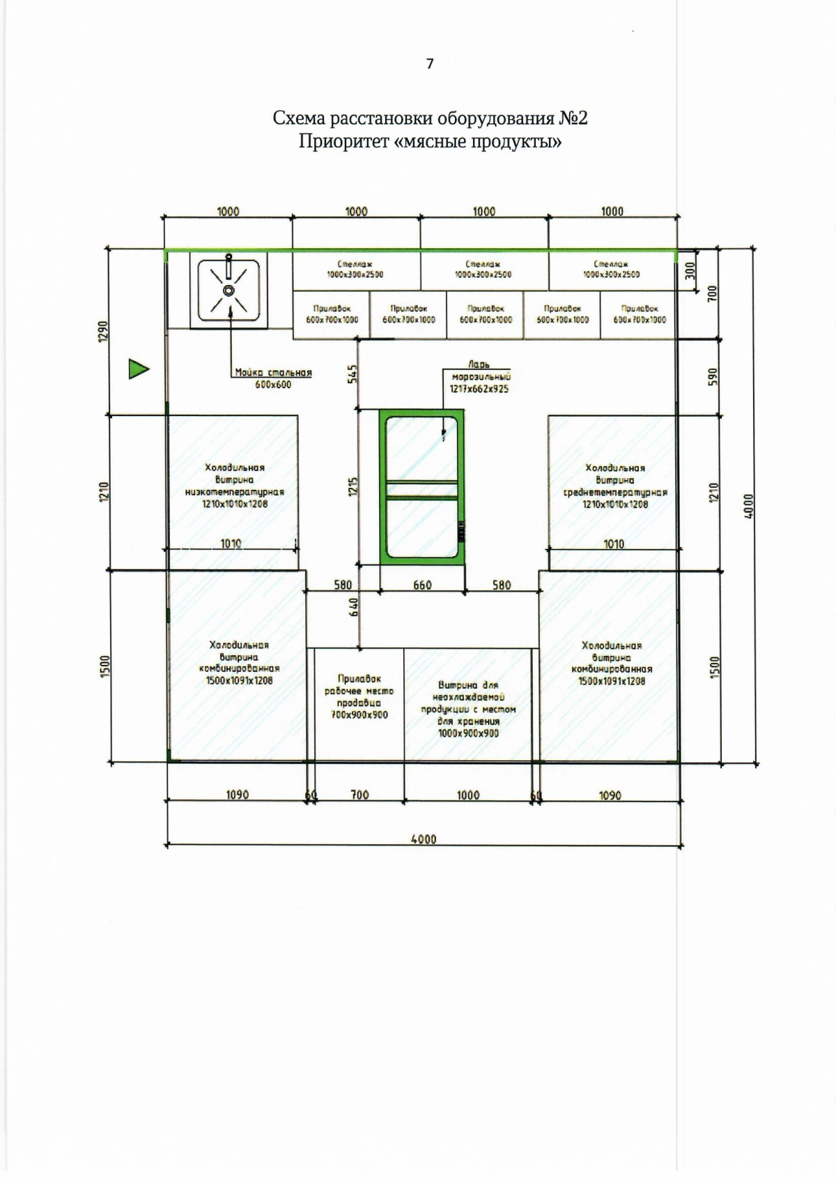
"О реализации постановления Правительства Вологодской области от 3 июля 2024 года № 787 "Об утверждении Порядка предоставления субсидий на поддержку приобретения оборудования для реализации фермерской продукции в 2024 году"
(Зарегистрирован 16.07.2024 № 250)
Номер опубликования: 3501202407220005
Дата опубликования: 22.07.2024
Страница №7 из 12:
Увеличить