Официальное опубликование правовых актов
ОФИЦИАЛЬНОЕ ОПУБЛИКОВАНИЕ
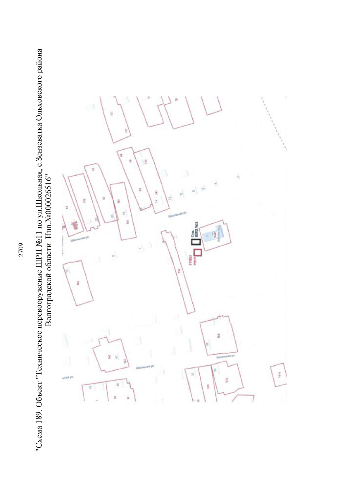
Постановление Губернатора Волгоградской области от 30.12.2025 № 801
"О внесении изменений в постановление Губернатора Волгоградской области от 29 декабря 2021 г. № 918 "Об утверждении региональной программы "Газификация жилищно-коммунального хозяйства, промышленных и иных организаций Волгоградской области на 2022-2031 годы" и о внесении изменений в постановление Губернатора Волгоградской области от 21 ноября 2017 г. № 769 "Об утверждении региональной программы "Газификация жилищно-коммунального хозяйства, промышленных и иных организаций Волгоградской области на 2017-2021 годы"
Номер опубликования: 3400202512310005
Дата опубликования: 31.12.2025
Страница №2710 из 2730:
Увеличить