Официальное опубликование правовых актов
ОФИЦИАЛЬНОЕ ОПУБЛИКОВАНИЕ
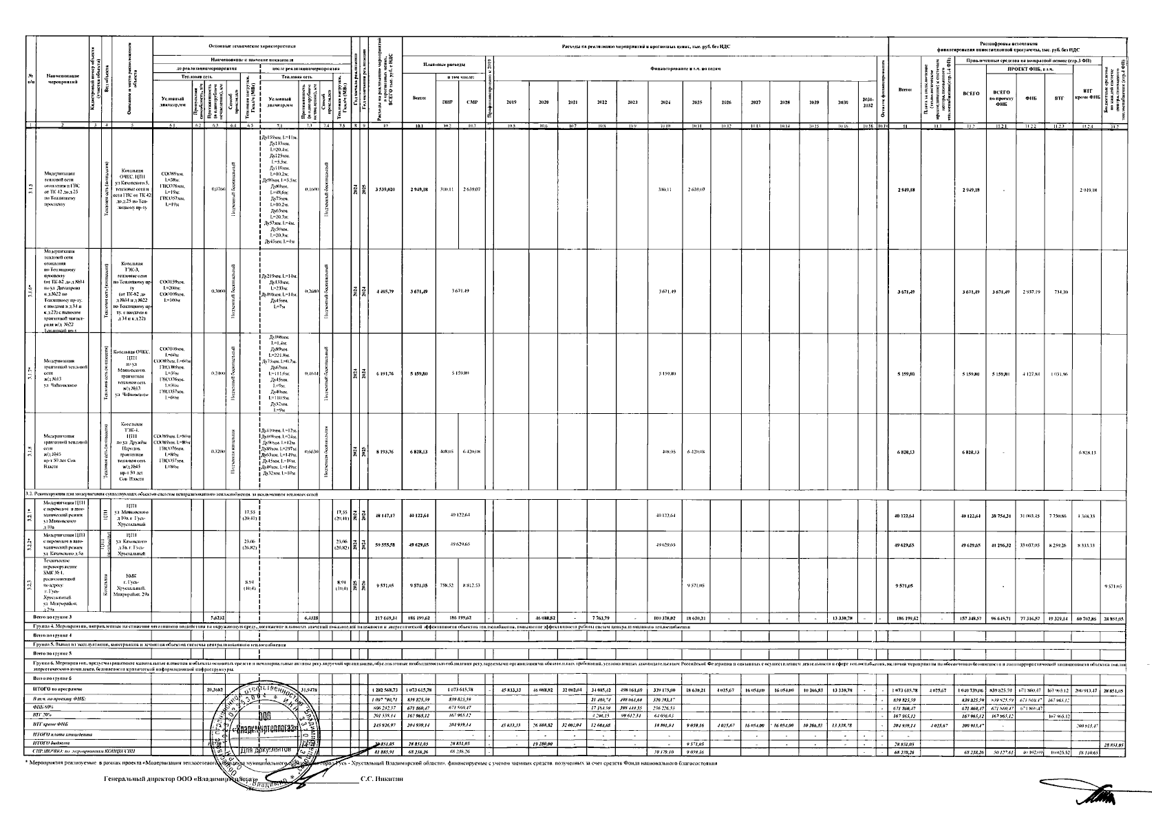
Приказ Министерства жилищно-коммунального хозяйства Владимирской области от 26.12.2024 № 341-н
"О внесении изменений в постановление департамента жилищно-коммунального хозяйства администрации Владимирской области от 29.10.2018№ 23"
(Зарегистрирован 26.12.2024 № МЖКХ2024-341)
Номер опубликования: 3301202412280005
Дата опубликования: 28.12.2024
Страница №9 из 16:
Увеличить