Официальное опубликование правовых актов
ОФИЦИАЛЬНОЕ ОПУБЛИКОВАНИЕ
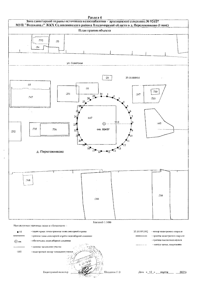
Приказ Министерства природопользования и экологии Владимирской области от 28.06.2023 № 83-н
"Об установлении зон санитарной охраны источников питьевого, хозяйственно-бытового, производственного и технологического водоснабжения МУП "Водоканал" ЖКХ Селивановского района"
(Зарегистрирован 28.06.2023 № МПЭ2023-083)
Номер опубликования: 3301202306280002
Дата опубликования: 28.06.2023
Страница №239 из 284:
Увеличить