Официальное опубликование правовых актов
ОФИЦИАЛЬНОЕ ОПУБЛИКОВАНИЕ
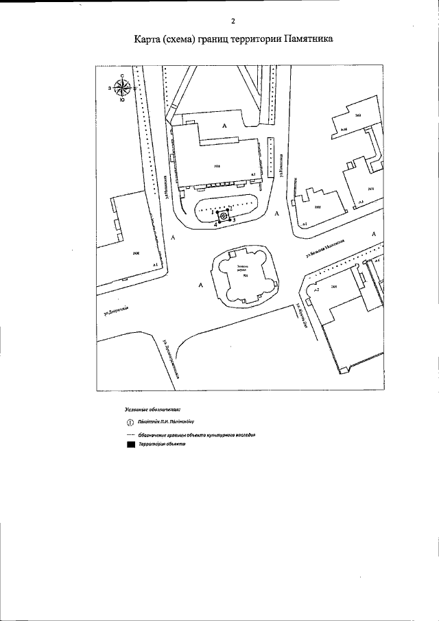
Постановление Инспекции по охране объектов культурного наследия Владимирской области от 22.11.2017 № 139
"Об утверждении границ и режима использования территории объекта культурного наследия регионального значения "Памятник П.И. Полянскому" (г. Владимир, ул. Большая Московская)"
Номер опубликования: 3301201711290014
Дата опубликования: 29.11.2017
Страница №3 из 7:
Увеличить