Официальное опубликование правовых актов
ОФИЦИАЛЬНОЕ ОПУБЛИКОВАНИЕ
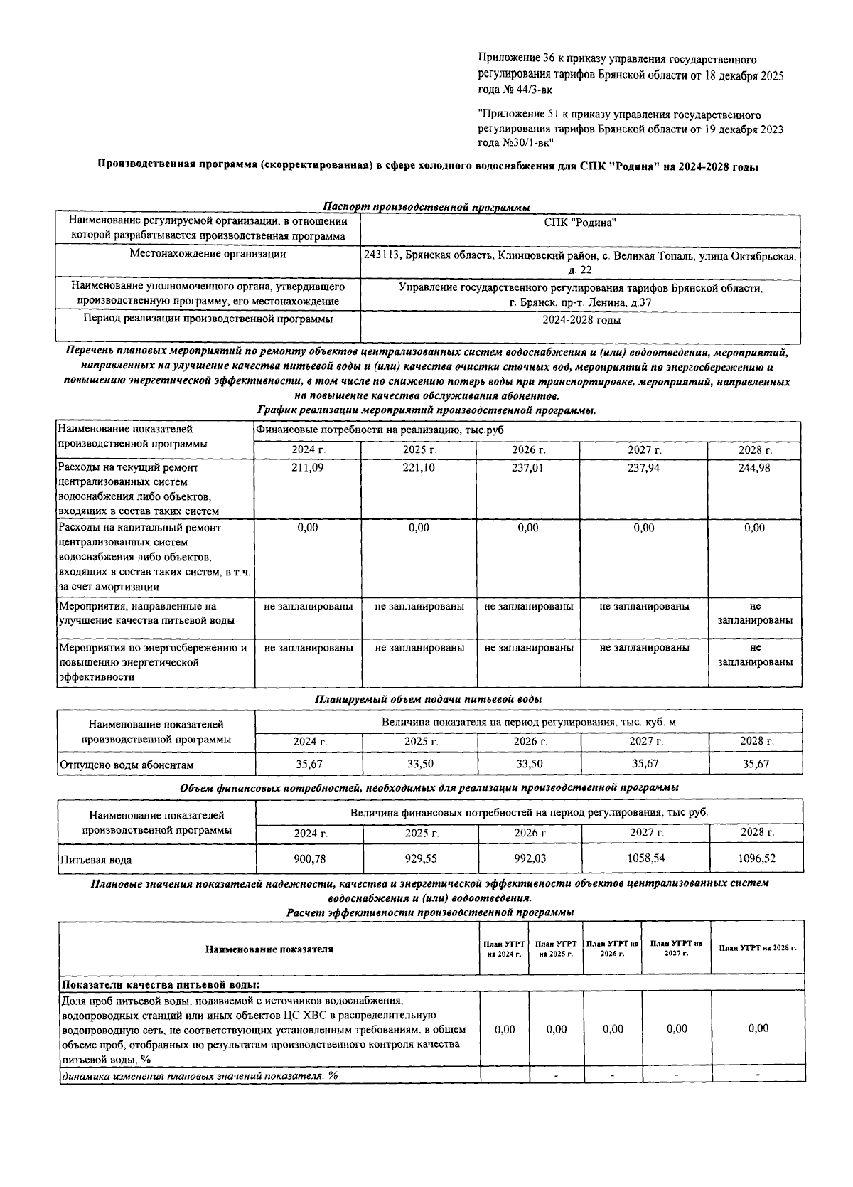
Приказ Управления государственного регулирования тарифов Брянской области от 18.12.2025 № 44/3-вк
"О внесении изменений в приказ управления государственного регулирования тарифов Брянской области от 19 декабря 2023 года № 30/1-вк "Об утверждении производственных программ в сфере холодного водоснабжения и водоотведения"
(Зарегистрирован 23.12.2025 № 20250128024)
Номер опубликования: 3201202512290034
Дата опубликования: 29.12.2025
Страница №76 из 165:
Увеличить