Официальное опубликование правовых актов
ОФИЦИАЛЬНОЕ ОПУБЛИКОВАНИЕ
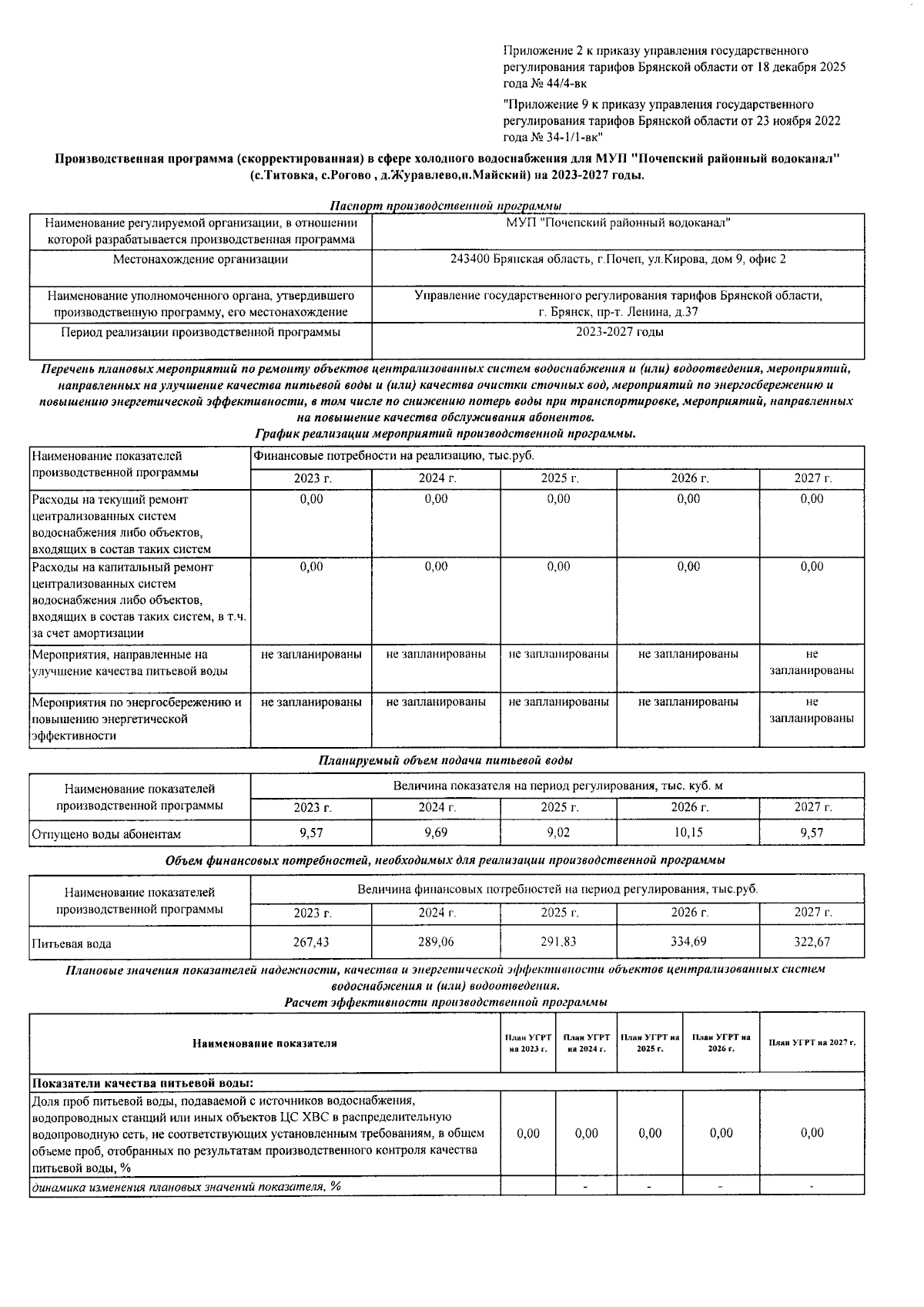
Приказ Управления государственного регулирования тарифов Брянской области от 18.12.2025 № 44/4-вк
"О внесении изменении в приказ управления государственного регулирования тарифов Брянской области от 23 ноября 2022 года № 34-1/1-вк "Об утверждении производственных программ в сфере холодного водоснабжения и водоотведения"
(Зарегистрирован 23.12.2025 № 20250129024)
Номер опубликования: 3201202512290027
Дата опубликования: 29.12.2025
Страница №5 из 10:
Увеличить