Официальное опубликование правовых актов
ОФИЦИАЛЬНОЕ ОПУБЛИКОВАНИЕ
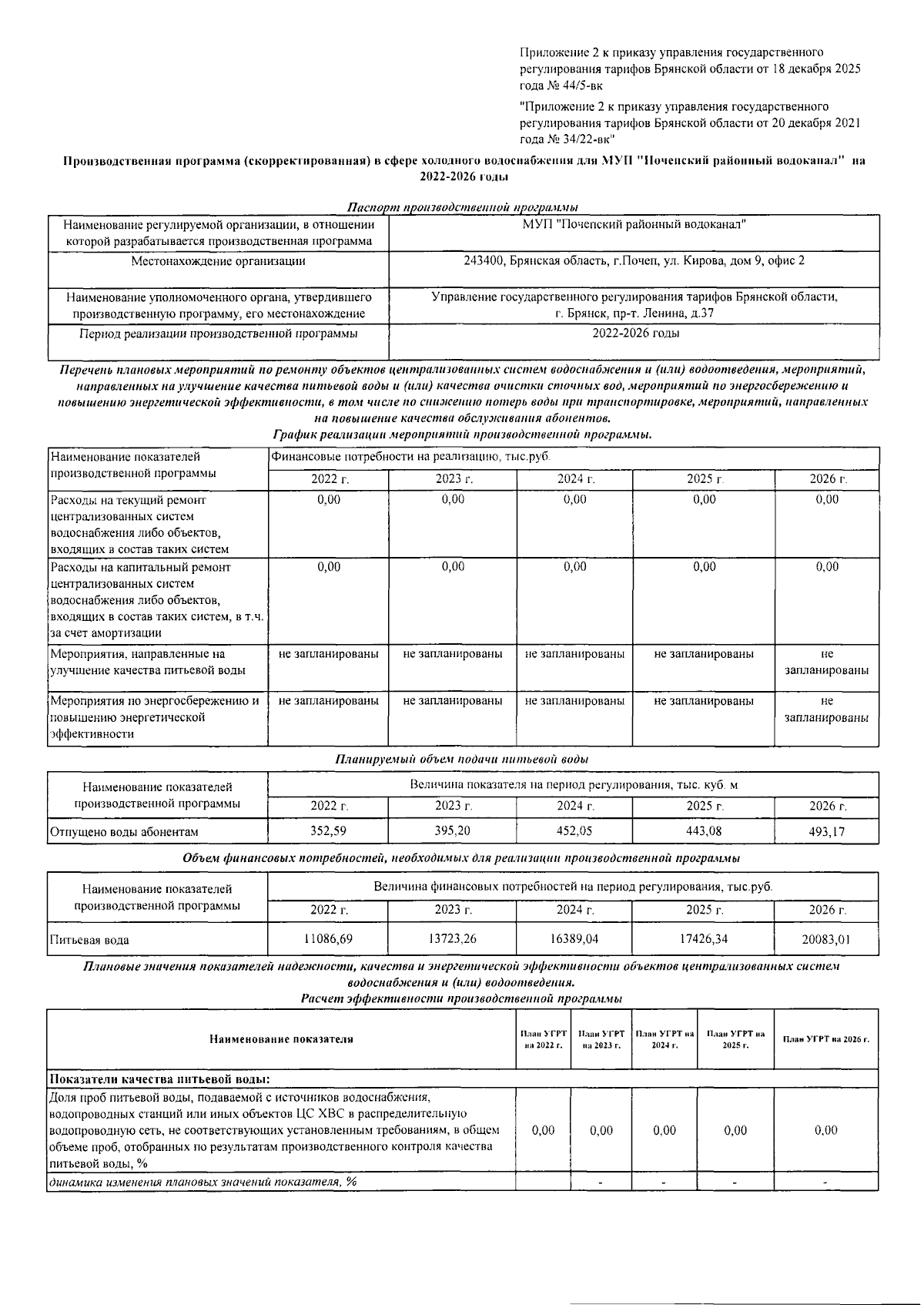
Приказ Управления государственного регулирования тарифов Брянской области от 18.12.2025 № 44/5-вк
"О внесении изменений в приказ управления государственного регулирования тарифов Брянской области от 20 декабря 2021 года № 34/22-вк "Об утверждении производственных программ в сфере холодного водоснабжения и водоотведения"
(Зарегистрирован 23.12.2025 № 20250130024)
Номер опубликования: 3201202512290023
Дата опубликования: 29.12.2025
Страница №5 из 16:
Увеличить