Официальное опубликование правовых актов
ОФИЦИАЛЬНОЕ ОПУБЛИКОВАНИЕ
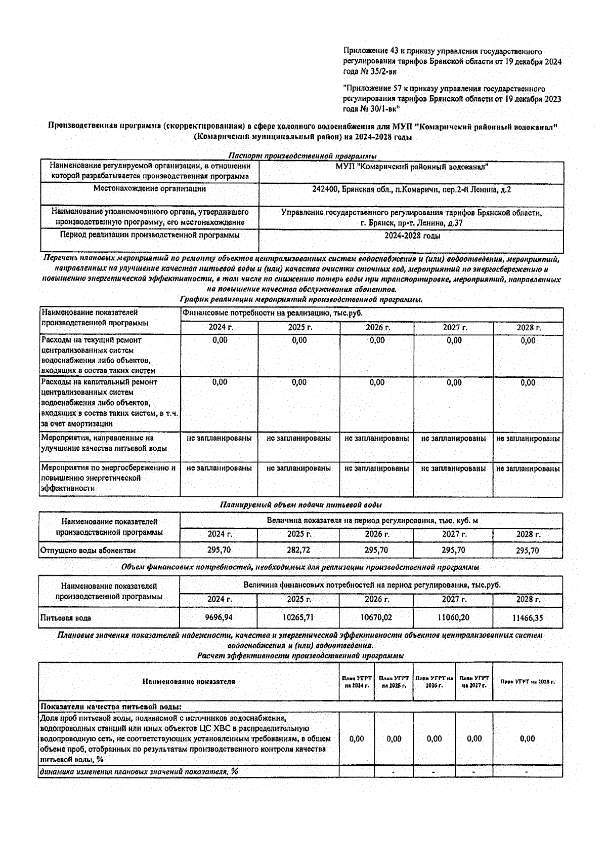
Приказ Управления государственного регулирования тарифов Брянской области от 19.12.2024 № 35/2-вк
"О внесении изменений в приказ управления государственного регулирования тарифов Брянской области от 19 декабря 2023 года № 30/1-вк "Об утверждении производственных программ в сфере холодного водоснабжения и водоотведения"
(Зарегистрирован 23.12.2024 № 20240133024)
Номер опубликования: 3201202412250002
Дата опубликования: 25.12.2024
Страница №91 из 180:
Увеличить