Официальное опубликование правовых актов
ОФИЦИАЛЬНОЕ ОПУБЛИКОВАНИЕ
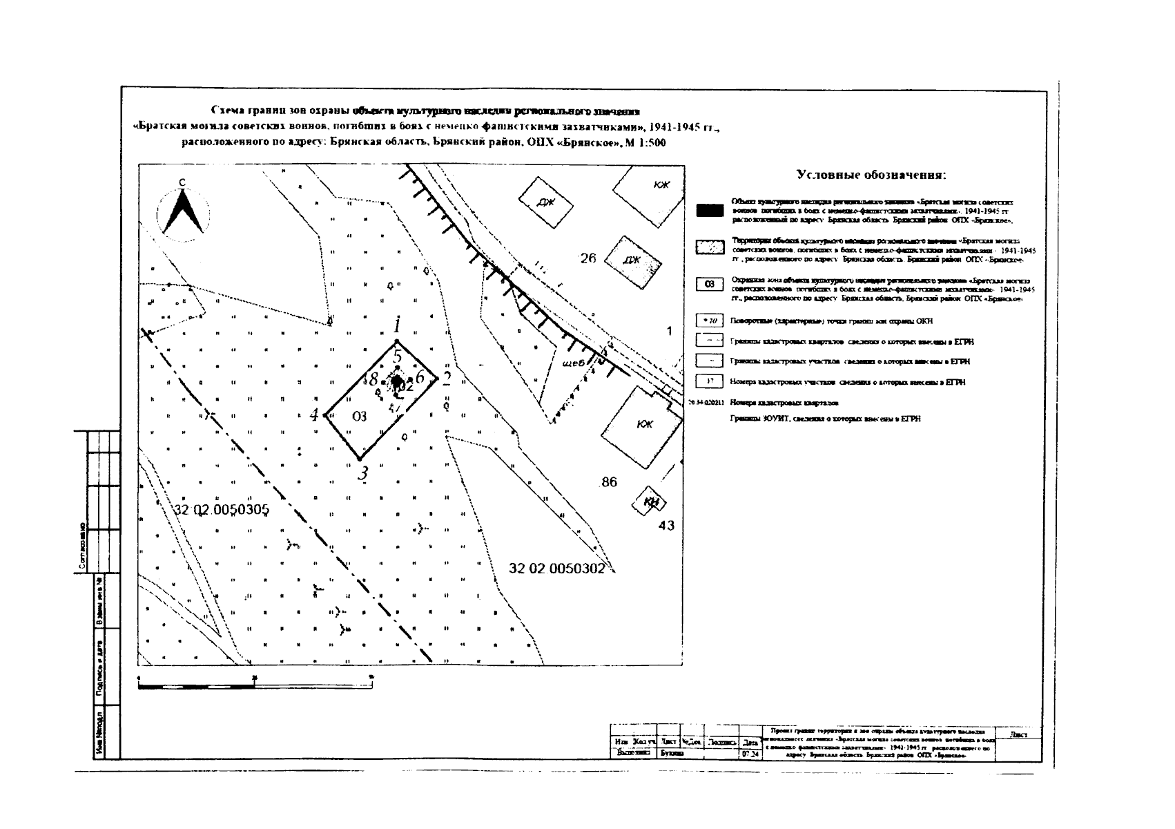
Приказ Управления по охране и сохранению историко-культурного наследия Брянской области от 11.12.2024 № 2-1/162
"Об установлении охранной зоны объекта культурного наследия регионального значения "Братская могила советских воинов, погибших в боях с немецко - фашистскими захватчиками", расположенного по адресу: Брянская область, Брянский район, ОПХ "Брянское", фактически расположенного по адресу: Брянская область, Брянский муниципальный район, Мичуринское сельское поселение, с. Елисеевичи, и утверждении требований к градостроительным регламентам в границах территории охранной зоны"
(Зарегистрирован 13.12.2024 № 20240078025)
Номер опубликования: 3201202412170018
Дата опубликования: 17.12.2024
Страница №5 из 7:
Увеличить