Официальное опубликование правовых актов
ОФИЦИАЛЬНОЕ ОПУБЛИКОВАНИЕ
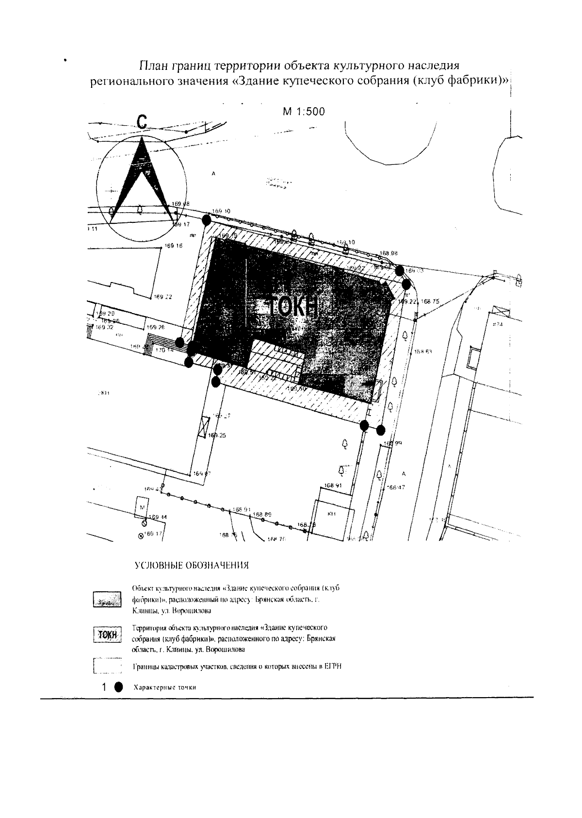
Приказ Управления по охране и сохранению историко-культурного наследия Брянской области от 18.11.2024 № 2-1/145
"Об утверждении границ территории, схемы границ территории и режима использования территории объекта культурного наследия регионального значения "Здание купеческого собрания (клуб фабрики)", расположенного по адресу: Брянская область, Клинцовский район, г. Клинцы, ул. Ворошилова"
(Зарегистрирован 18.11.2024 № 20240065025)
Номер опубликования: 3201202411220002
Дата опубликования: 22.11.2024
Страница №4 из 6:
Увеличить