Официальное опубликование правовых актов
ОФИЦИАЛЬНОЕ ОПУБЛИКОВАНИЕ
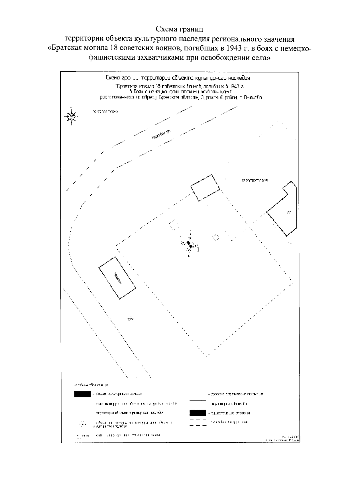
Приказ Управления по охране и сохранению историко-культурного наследия Брянской области от 26.12.2023 № 2-1/248
"Об утверждении границ территории, схемы границ территории и режима использования территории объекта культурного наследия регионального значения "Братская могила 18 советских воинов, погибших в 1943 г. в боях с немецко-фашистскими захватчиками при освобождении села", расположенного по адресу: Брянская область, Суражский район, с. Вьюково"
(Зарегистрирован 27.12.2023 № 20230144025)
Номер опубликования: 3201202312290033
Дата опубликования: 29.12.2023
Страница №3 из 4:
Увеличить