Официальное опубликование правовых актов
ОФИЦИАЛЬНОЕ ОПУБЛИКОВАНИЕ
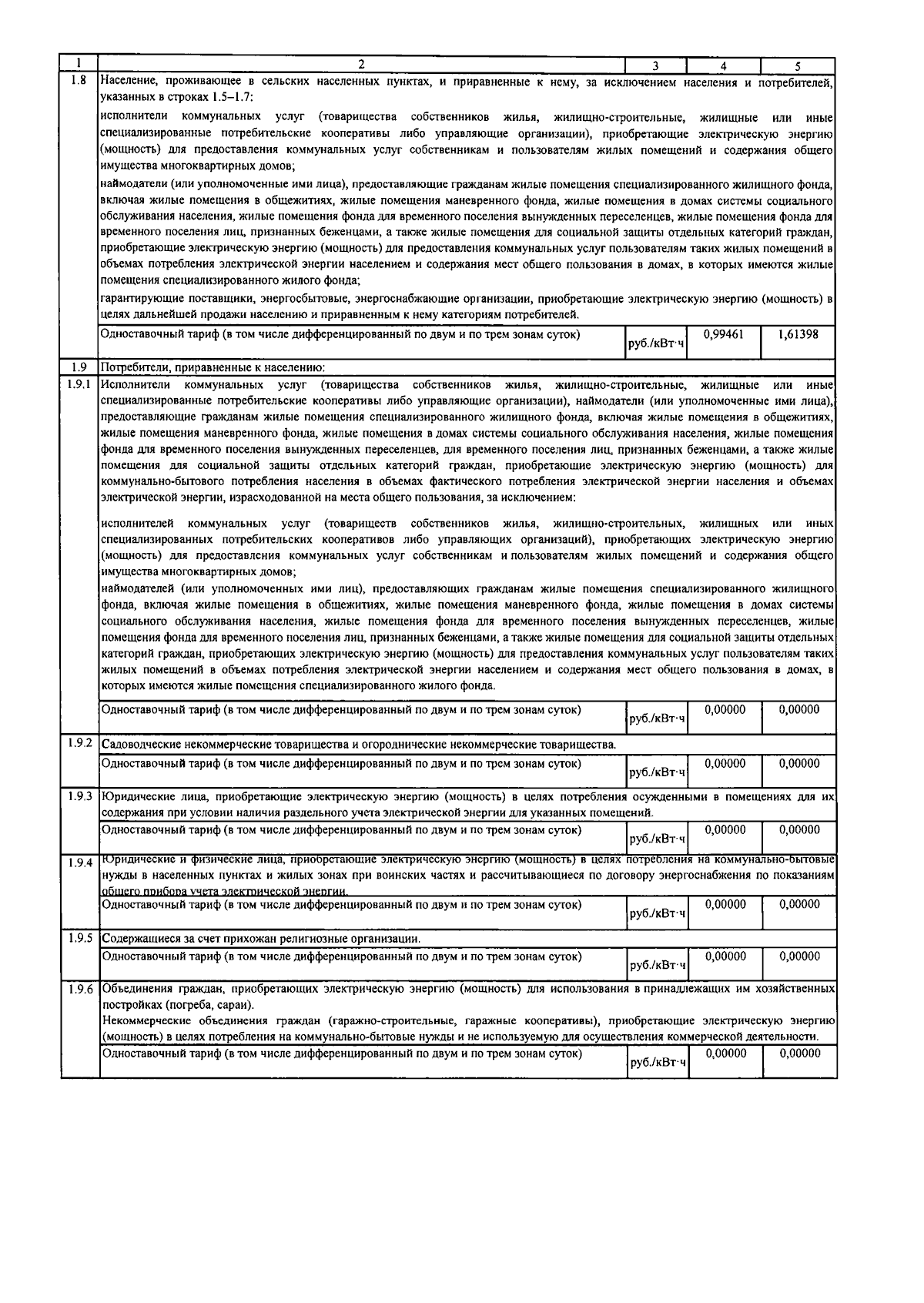
Приказ Управления государственного регулирования тарифов Брянской области от 20.12.2023 № 31-1/7-э
"О внесении изменений в приказ от 25 ноября 2022 года № 35/10-э "О единых (котловых) тарифах на услуги по передаче электрической энергии по сетям Брянской области"
(Зарегистрирован 21.12.2023 № 20230264024)
Номер опубликования: 3201202312270009
Дата опубликования: 27.12.2023
Страница №13 из 16:
Увеличить