Официальное опубликование правовых актов
ОФИЦИАЛЬНОЕ ОПУБЛИКОВАНИЕ
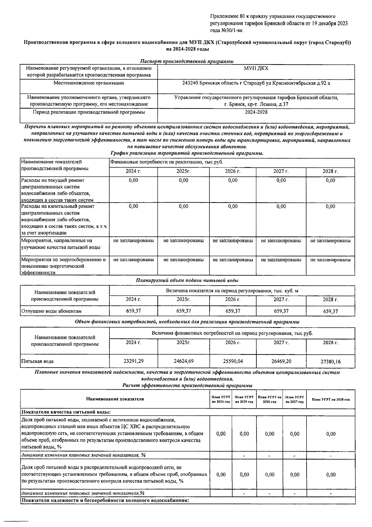
Приказ Управления государственного регулирования тарифов Брянской области от 19.12.2023 № 30/1-вк
"Об утверждении производственных программ в сфере холодного водоснабжения и водоотведения"
(Зарегистрирован 20.12.2023 № 20230116024)
Номер опубликования: 3201202312260002
Дата опубликования: 26.12.2023
Страница №158 из 204:
Увеличить