Официальное опубликование правовых актов
ОФИЦИАЛЬНОЕ ОПУБЛИКОВАНИЕ
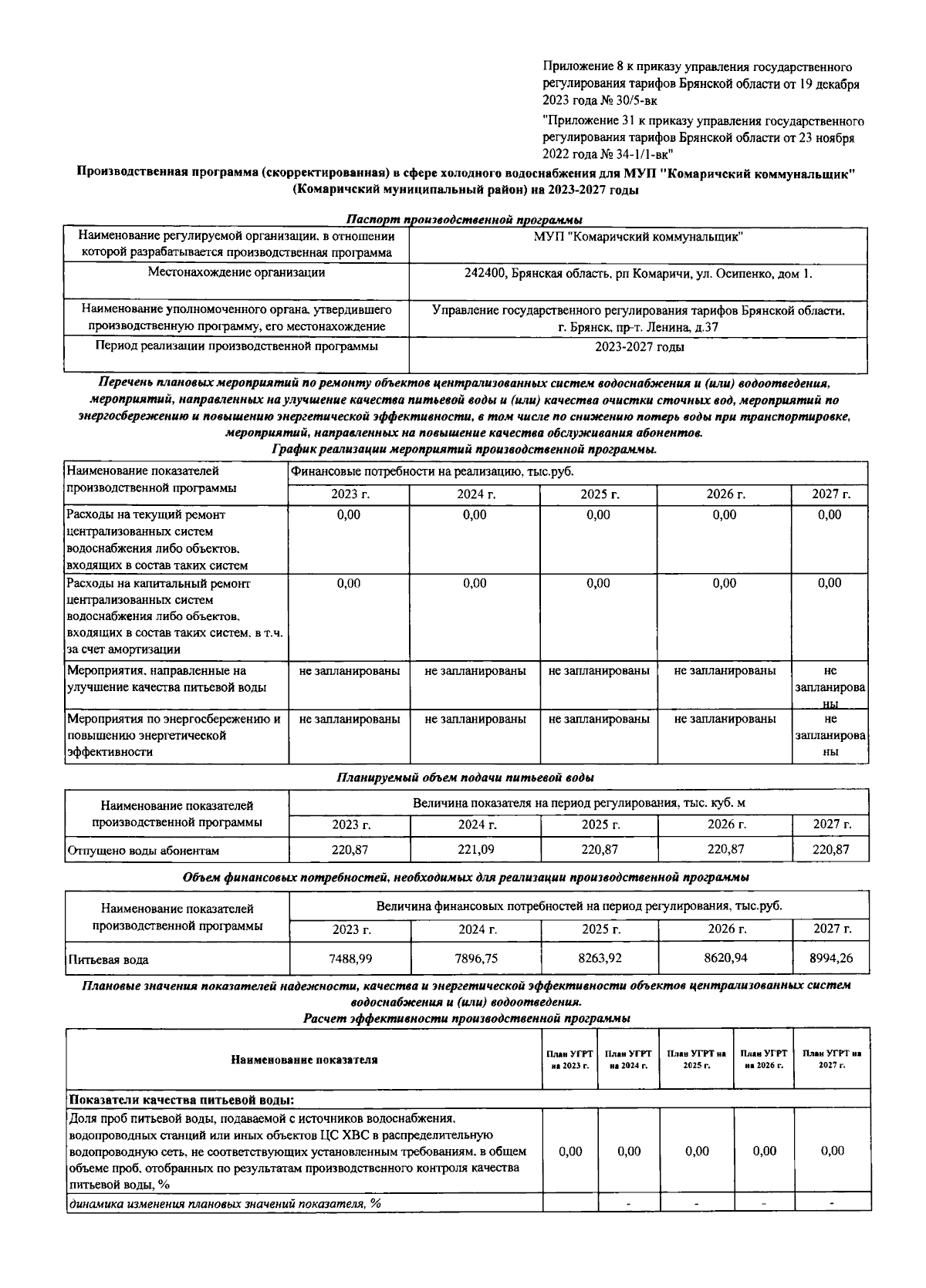
Приказ Управления государственного регулирования тарифов Брянской области от 19.12.2023 № 30/5-вк
"О внесении изменений в приказ управления государственного регулирования тарифов Брянской области от 23 ноября 2022 года №34-1/1-вк "Об утверждении производственных программ в сфере холодного водоснабжения и водоотведения"
(Зарегистрирован 20.12.2023 № 20230120024)
Номер опубликования: 3201202312250050
Дата опубликования: 25.12.2023
Страница №17 из 28:
Увеличить