Официальное опубликование правовых актов
ОФИЦИАЛЬНОЕ ОПУБЛИКОВАНИЕ
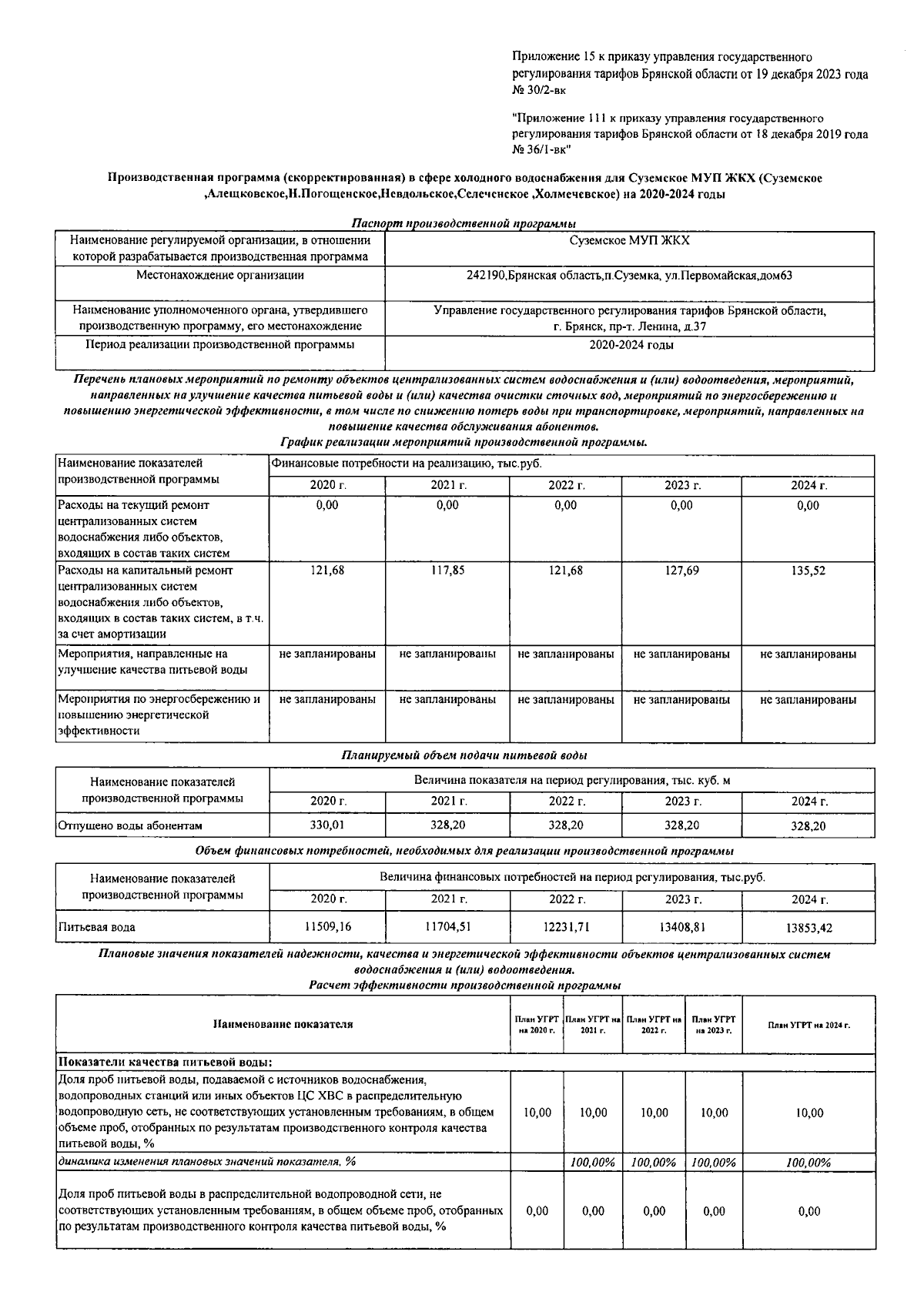
Приказ Управления государственного регулирования тарифов Брянской области от 19.12.2023 № 30/2-вк
"О внесении изменений в приказ управления государственного регулирования тарифов Брянской области от 18 декабря 2019 года № 36/1-вк "Об утверждении производственных программ организаций в сфере холодного водоснабжения и (или) водоотведения"
(Зарегистрирован 20.12.2023 № 20230117024)
Номер опубликования: 3201202312250004
Дата опубликования: 25.12.2023
Страница №31 из 46:
Увеличить