Официальное опубликование правовых актов
ОФИЦИАЛЬНОЕ ОПУБЛИКОВАНИЕ
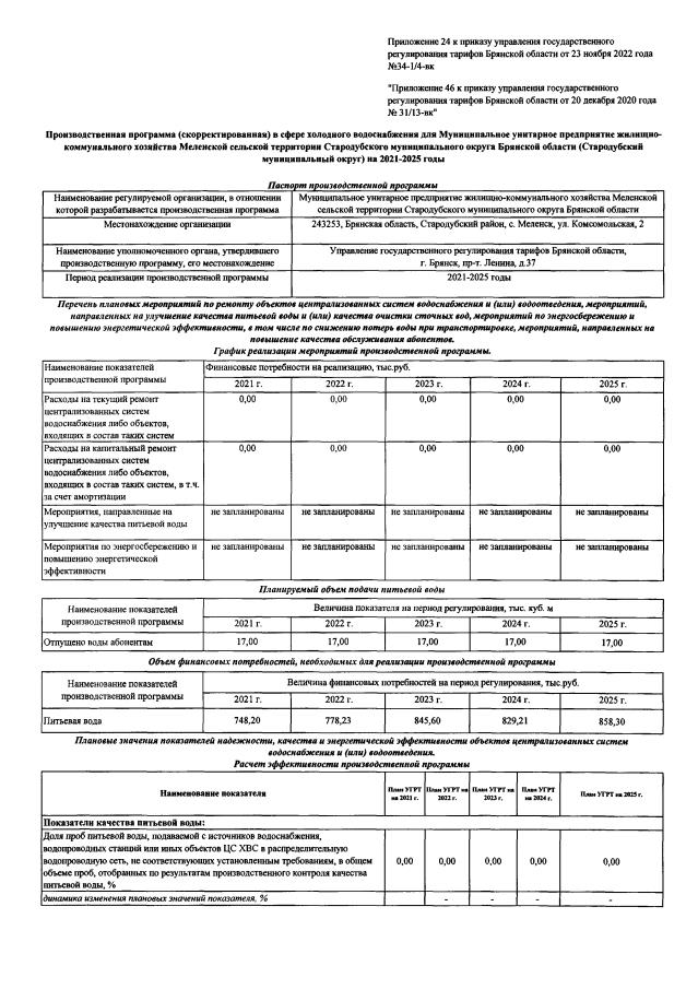
Приказ Управления государственного регулирования тарифов Брянской области от 23.11.2022 № 34-1/4-вк
"О внесении изменений в приказ управления государственного регулирования тарифов Брянской области от 18 декабря 2020 года № 31/13-вк "Об утверждении производственных программ в сфере холодного водоснабжения и водоотведения"
Номер опубликования: 3201202211300062
Дата опубликования: 30.11.2022
Страница №50 из 65:
Увеличить