Официальное опубликование правовых актов
ОФИЦИАЛЬНОЕ ОПУБЛИКОВАНИЕ
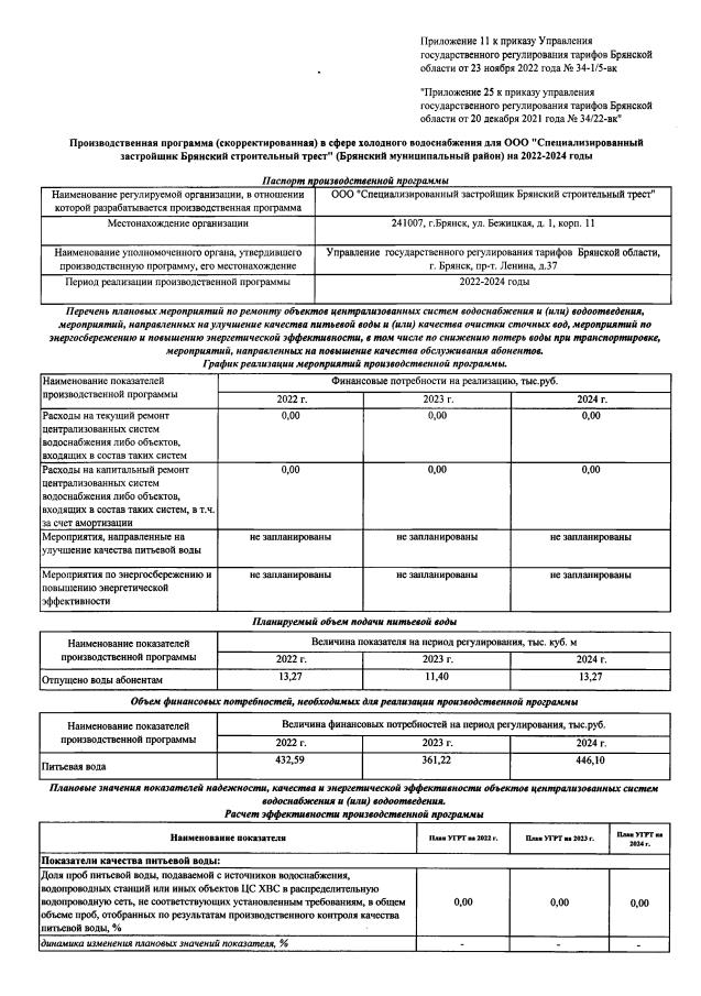
Приказ Управления государственного регулирования тарифов Брянской области от 23.11.2022 № 34-1/5-вк
"О внесении изменений в приказ управления государственного регулирования тарифов Брянской области от 20 декабря 2021 года № 34/22-вк "Об утверждении производственных программ в сфере холодного водоснабжения и водоотведения"
Номер опубликования: 3201202211300059
Дата опубликования: 30.11.2022
Страница №23 из 46:
Увеличить