Официальное опубликование правовых актов
ОФИЦИАЛЬНОЕ ОПУБЛИКОВАНИЕ
Приказ Управления государственного регулирования тарифов Брянской области от 23.11.2022 № 34-1/3-вк
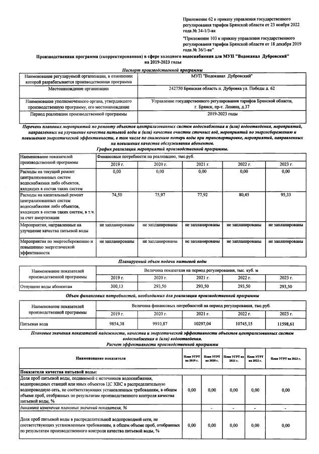
"О внесении изменений в приказ управления государственного регулирования тарифов Брянской области от 18 декабря 2019 года № 36/1-вк "Об утверждении производственных программ организаций в сфере холодного водоснабжения и (или) водоотведения"
Номер опубликования: 3201202211300005
Дата опубликования: 30.11.2022
Страница №129 из 194:
Увеличить