Официальное опубликование правовых актов
ОФИЦИАЛЬНОЕ ОПУБЛИКОВАНИЕ
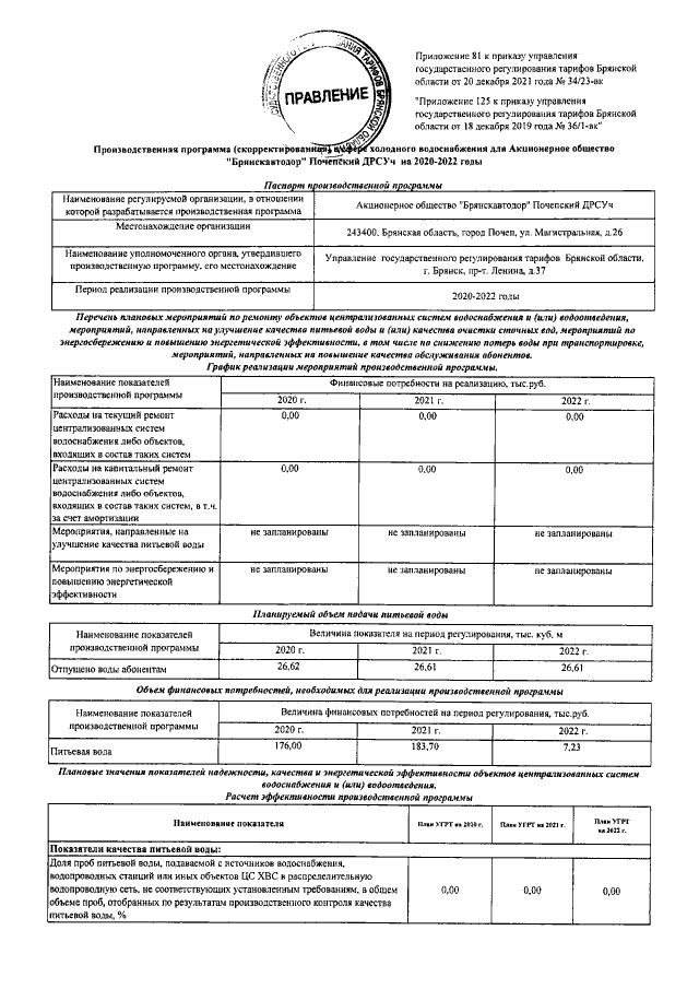
Приказ Управления государственного регулирования тарифов Брянской области от 20.12.2021 № 34/23-вк
"О внесении изменений в приказ управления государственного регулирования тарифов Брянской области от 18 декабря 2019 года № 36/1-вк "Об утверждении производственных программ организаций в сфере холодного водоснабжения и (или) водоотведения"
Номер опубликования: 3201202112270223
Дата опубликования: 27.12.2021
Страница №168 из 237:
Увеличить