Официальное опубликование правовых актов
ОФИЦИАЛЬНОЕ ОПУБЛИКОВАНИЕ
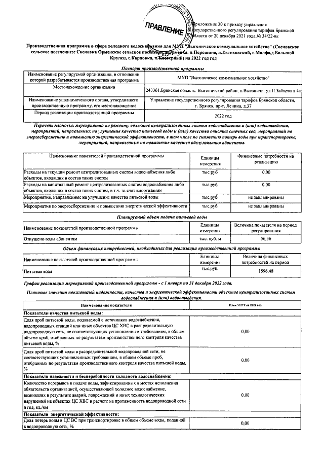
Приказ Управления государственного регулирования тарифов Брянской области от 20.12.2021 № 34/22-вк
"Об утверждении производственных программ в сфере холодного водоснабжения и водоотведения"
Номер опубликования: 3201202112270222
Дата опубликования: 27.12.2021
Страница №59 из 96:
Увеличить