Официальное опубликование правовых актов
ОФИЦИАЛЬНОЕ ОПУБЛИКОВАНИЕ
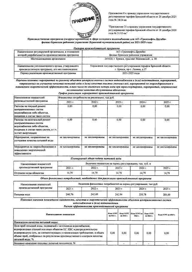
Приказ Управления государственного регулирования тарифов Брянской области от 20.12.2021 № 34/24-вк
"О внесении изменений в приказ управления государственного регулирования тарифов Брянской области от 18 декабря 2020 года № 31/13-вк "Об утверждении производственных программ в сфере холодного водоснабжения и водоотведения"
Номер опубликования: 3201202112270094
Дата опубликования: 27.12.2021
Страница №18 из 69:
Увеличить