Официальное опубликование правовых актов
ОФИЦИАЛЬНОЕ ОПУБЛИКОВАНИЕ
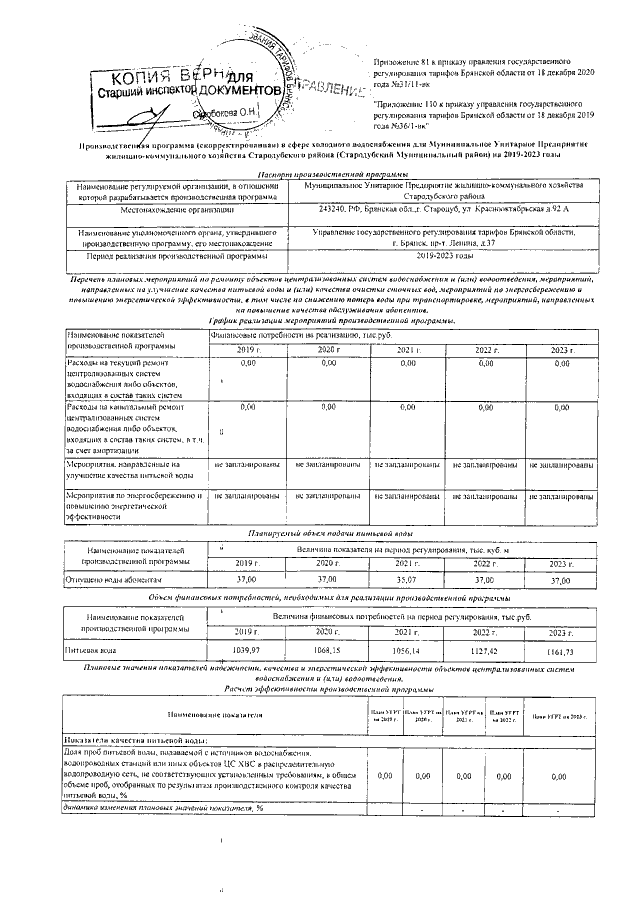
Приказ Управления государственного регулирования тарифов Брянской области от 18.12.2020 № 31/11-вк
"О внесении изменений в приказ управления государственного регулирования тарифов Брянской области от 18 декабря 2019 года № 36/1-вк "Об утверждении производственных программ организаций в сфере холодного водоснабжения и (или) водоотведения"
Номер опубликования: 3201202012250066
Дата опубликования: 25.12.2020
Страница №169 из 292:
Увеличить