Официальное опубликование правовых актов
ОФИЦИАЛЬНОЕ ОПУБЛИКОВАНИЕ
Приказ Управления государственного регулирования тарифов Брянской области от 18.12.2020 № 31/4-вк
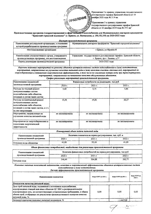
"О внесении изменений в приказ управления государственного регулирования тарифов Брянской области от 20 декабря 2019 года № 37/1-вк "Об утверждении производственных программ в сфере холодного водоснабжения и (или) водоотведения для МУП "Брянский городской водоканал""
Номер опубликования: 3201202012220011
Дата опубликования: 22.12.2020
Страница №7 из 10:
Увеличить