Официальное опубликование правовых актов
ОФИЦИАЛЬНОЕ ОПУБЛИКОВАНИЕ
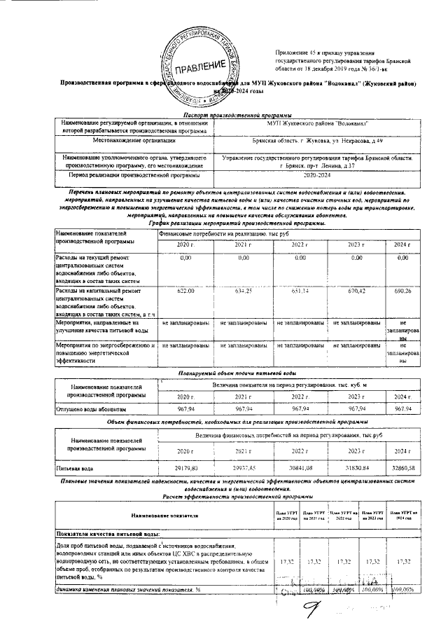
Приказ Управления государственного регулирования тарифов Брянской области от 18.12.2019 № 36/1-вк
"Об утверждении производственных программ организаций в сфере холодного водоснабжения и (или) водоотведения"
Номер опубликования: 3201201912250030
Дата опубликования: 25.12.2019
Страница №90 из 399:
Увеличить