Официальное опубликование правовых актов
ОФИЦИАЛЬНОЕ ОПУБЛИКОВАНИЕ
Приказ Управления государственного регулирования тарифов Брянской области от 06.02.2019 № 4/1-пэ
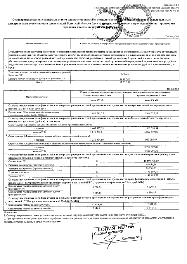
"О внесении изменений в приказ от 26 декабря 2018 года №38/1-пэ "Об установлении платы за технологическое присоединение к распределительным электрическим сетям сетевых организаций Брянской области на 2019 год"
Номер опубликования: 3201201902130002
Дата опубликования: 13.02.2019
Страница №3 из 6:
Увеличить