Официальное опубликование правовых актов
ОФИЦИАЛЬНОЕ ОПУБЛИКОВАНИЕ
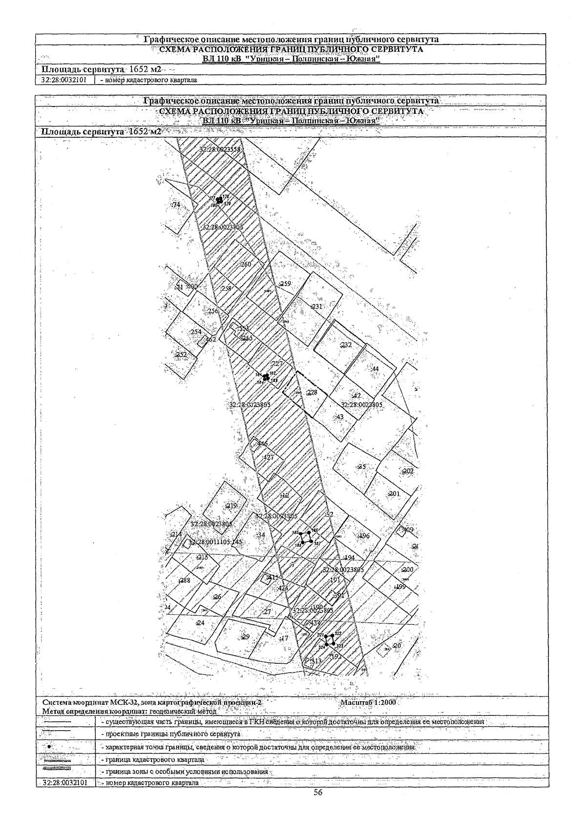
Постановление Правительства Брянской области от 10.03.2025 № 113-п
"Об установлении публичного сервитута"
Номер опубликования: 3200202503140001
Дата опубликования: 14.03.2025
Страница №62 из 80:
Увеличить