Официальное опубликование правовых актов
ОФИЦИАЛЬНОЕ ОПУБЛИКОВАНИЕ
Постановление Правительства Брянской области от 14.08.2023 № 381-п
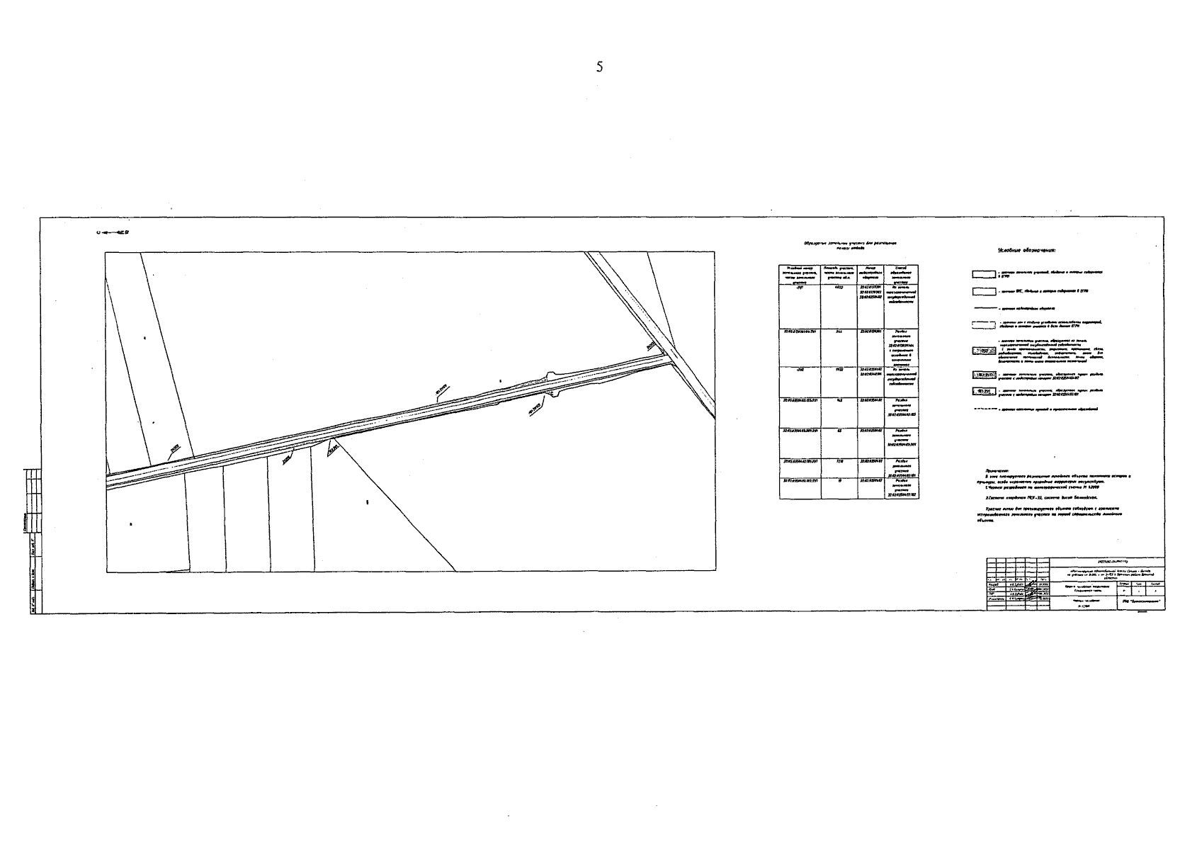
"Об утверждении основной части проекта межевания территории для размещения линейного объекта "Реконструкция автомобильной дороги Сельцо — Бетово на участке км 0+000 — км 3+153 в Брянском районе Брянской области"
Номер опубликования: 3200202308180010
Дата опубликования: 18.08.2023
Страница №6 из 30:
Увеличить