Официальное опубликование правовых актов
ОФИЦИАЛЬНОЕ ОПУБЛИКОВАНИЕ
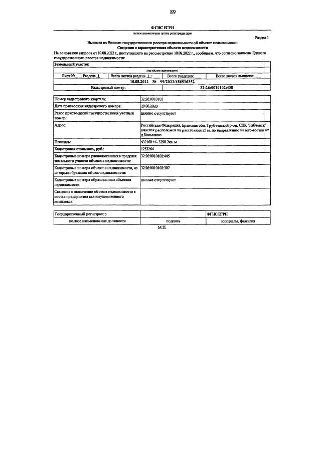
Постановление Правительства Брянской области от 09.01.2023 № 2-п
"Об утверждении основной части проекта межевания территории для размещения линейного объекта "Реконструкция автомобильной дороги Яковск - Копылин на участке км 0+200 - км 3+300 в Трубчевском районе Брянской области"
Номер опубликования: 3200202301160003
Дата опубликования: 16.01.2023
Страница №90 из 112:
Увеличить