Официальное опубликование правовых актов
ОФИЦИАЛЬНОЕ ОПУБЛИКОВАНИЕ
Постановление Правительства Брянской области от 02.04.2018 № 157-п
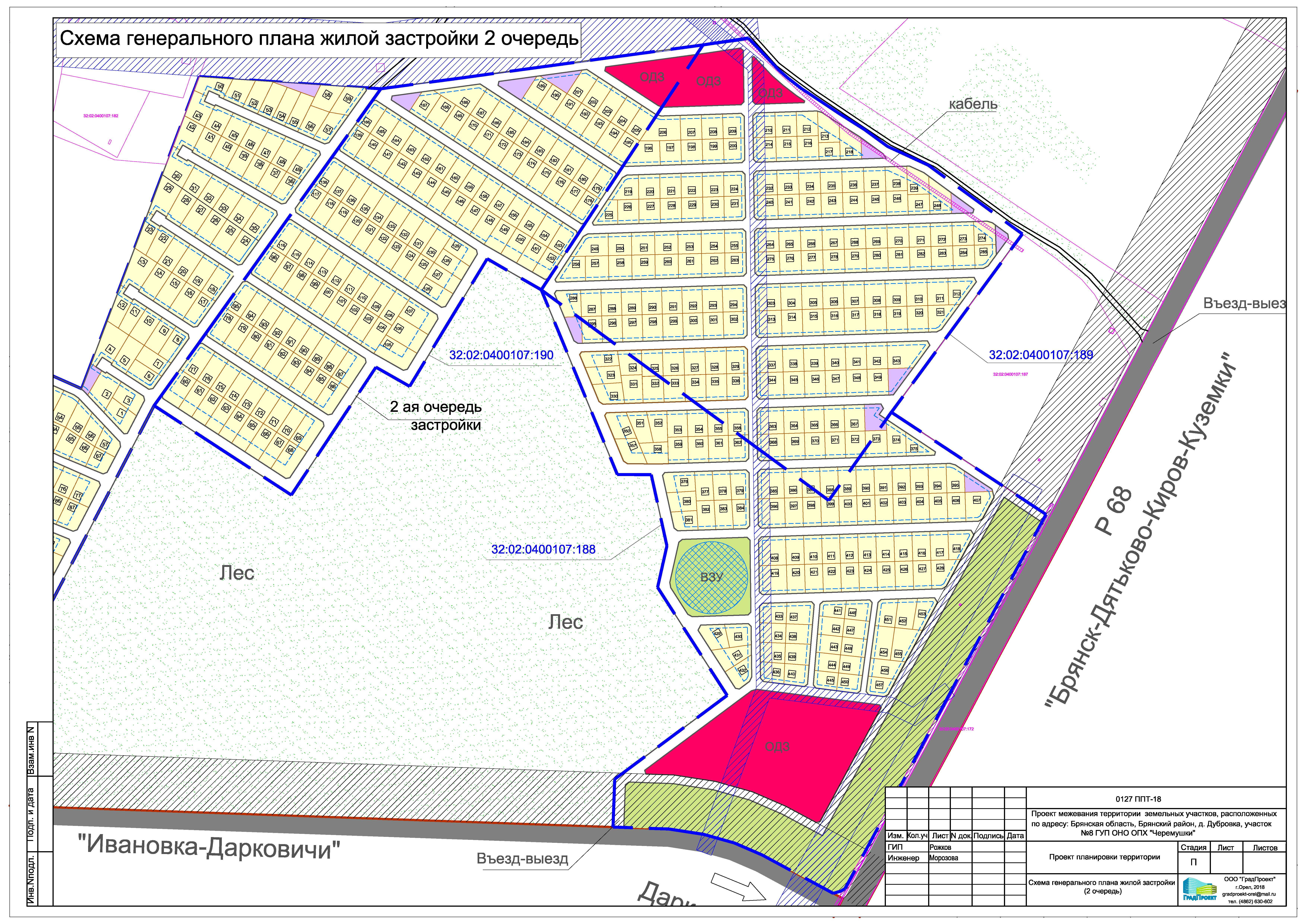
"Об утверждении проекта планировки территории и проекта межевания территории земельных участков, расположенных по адресу: Брянская область, Брянский район, дер. Дубровка, участок № 8 ГУП ОНО ОПХ "Черемушки"
Номер опубликования: 3200201804050016
Дата опубликования: 05.04.2018
Страница №150 из 153: