Официальное опубликование правовых актов
ОФИЦИАЛЬНОЕ ОПУБЛИКОВАНИЕ
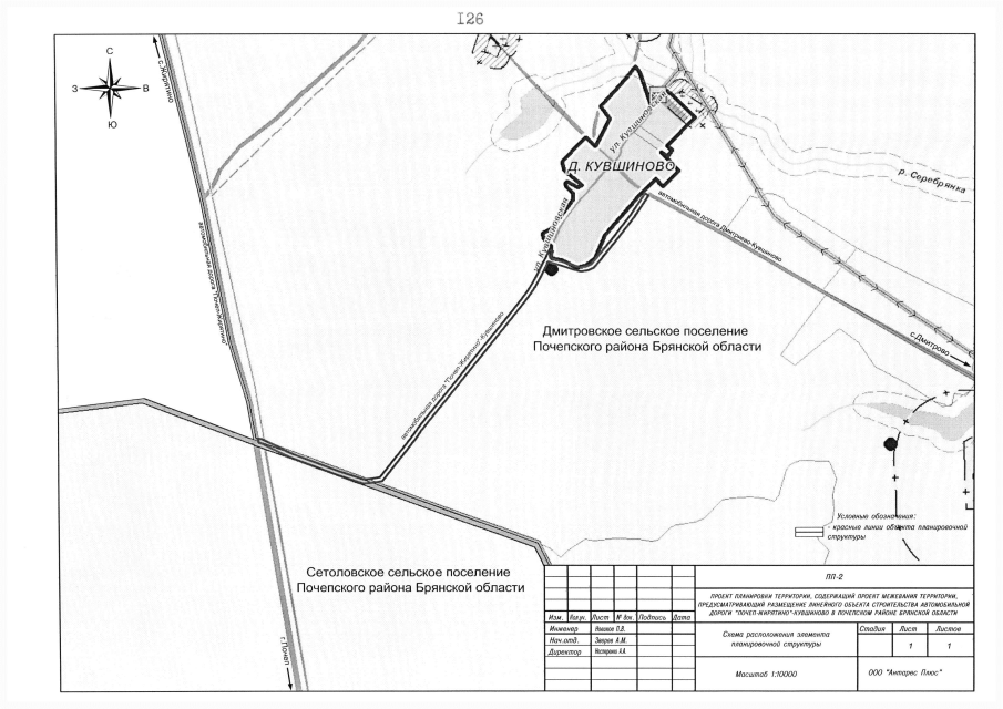
Постановление Правительства Брянской области от 25.12.2015 № 721-п
"Об утверждении документации по планировке территории"
Номер опубликования: 3200201512310002
Дата опубликования: 31.12.2015
Страница №127 из 156:
Увеличить