Официальное опубликование правовых актов
ОФИЦИАЛЬНОЕ ОПУБЛИКОВАНИЕ
Постановление Правительства Белгородской области от 21.04.2025 № 214-пп
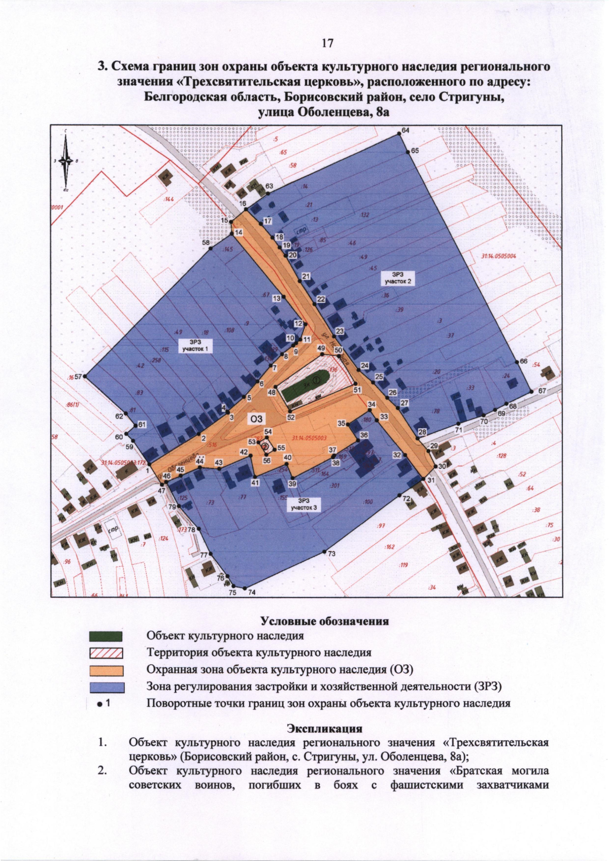
"Об утверждении границ зон охраны, режимов использования земель и требований к градостроительным регламентам в границах зон охраны объектов культурного наследия (памятников истории и культуры), расположенных на территории муниципального района "Борисовский район" Белгородской области"
Номер опубликования: 3100202504250001
Дата опубликования: 25.04.2025
Страница №17 из 53:
Увеличить